Сдам коммерческую недвижимость в Екатеринбурге

Коммерческая недвижимость в Екатеринбурге
Цена 199 500 р.
Вид недвижимости Нежилые свободного назначения
Район Эльмаш
Адрес ул. Старых Большевиков, 2
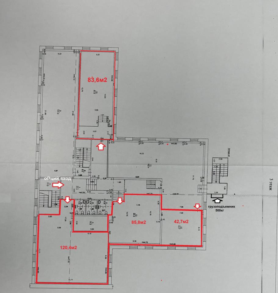
Площадь помещения 332,5 м2
Помещение <b>332,5м2,</b> состоящее из<b> 4-х помещений разной площади,</b> потолки от <b>4-7метров,</b> под <b>мелкое производство, швейное производство, услуги, офис, склад.</b> 3 этаж административного здание. Г<b>рузоподъемник 500кг, санузлы на этаже.</b> Здание под охраной. Общий вход. <b>Есть возможность арендовать часть помещений. Отопление, вода включены в стоимость ставки.</b><br /><br /><b>ЛОКАЦИЯ: о</b>становка транспорта <b>Краснофлотцев</b><br /><b>Соседи в здании:</b> офисы, швейная фабрика Морозовых, Уральская машиностроительная компания, ПроМишени, ВнешЭкономСбыт и др.<br /><b>Заезд через шлагбаум</b> со стороны улиц <b>Старых Большевиков, Шефская<br /></b>В шаговой доступности - магазин Чижик, две столовые для сотрудников.<br /><br /><b>ХАРАКТЕРИСТИКА ОБЪЕКТА:</b><br /><b>3 этаж/3 этажей, общая площадь 332,5м2 = (120м2+43м2+86м2+90м2)</b><br />Помещения свободной планировки, возможно зонирование<br />Электрическая мощность <b>30 кВт</b><br /><b>Потолки</b> высотой <b>от 3,8 - 7 метров</b><br />Охранно-пожарная сигнализация<br /><b>Грузоподъемник 500кг</b><br /><b>Санузел на этаже</b><br /><b>Вход общий</b><br /><br /><b>ДОПОЛНИТЕЛЬНАЯ ИНФОРМАЦИЯ:</b><br />Арендная ставка &ndash; <b>600р. в месяц за м2 (+НДС 5%). Договор с ООО</b><br />Обеспечительный платеж в размере одного месячного платежа<br /><b>Коммунальные платежи (электричество) оплачиваются дополнительно</b><br /><b>Есть возможность арендовать часть помещений.</b> ID объекта в нашей базе: 9248
Объявление № 23680988
Дата подачи:
26 ноября 2025 г. 6:55
Дата обновления:
26 ноября 2025 г. 6:00
Просмотров 1 Хотите продать быстрее?

Продавец
Агентство недвижимости:
Анжелика Сергеевна
email: 9122747215@mail.ru
Показать номер телефона
Пожаловаться
Комментарии:
Добавить