Сдам коммерческую недвижимость в Екатеринбурге

Коммерческая недвижимость в Екатеринбурге
Цена 150 000 р.
Вид недвижимости Производственные помещения
Район Эльмаш
Адрес ул. Старых Большевиков, 2
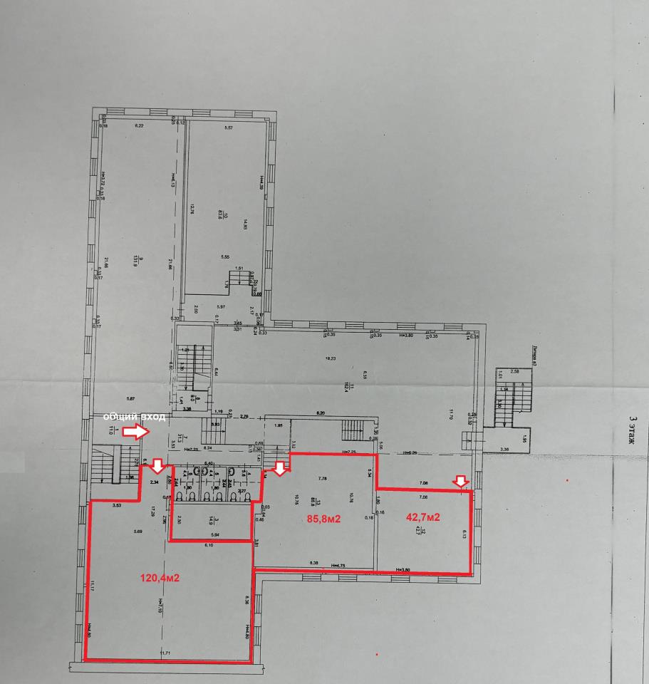
Площадь помещения 250 м2
Помещение с <b>высокими потолками</b>, под <b>ОФИС, мелкое производство, швейное производство, услуги, склад</b>. 3 этаж административного здания. Наземная парковка. Транспортная доступность. <b>Здание под охраной. Общий вход.</b> Есть <b>грузоподъемник. Есть возможность арендовать часть помещения.</b><br /><b><br />ЛОКАЦИЯ:</b><br />Остановка транспорта <b>Краснофлотцев</b><br /><b>Соседи в здании:</b> офисы, швейная фабрика Морозовых, Уральская машиностроительная компания, ПроМишени, ВнешЭкономСбыт и др.<br />Автомобильный трафик по <b>ул. Старых Большевиков, Шефская, Фронтовых бригад.</b><br /><b><br />ХАРАКТЕРИСТИКА ОБЪЕКТА:</b><br /><b>3 этаж</b>/3 этажей, <b>общая площадь </b><b>250м2 = (120м2+43м2+86м2)</b><br />Помещения свободной планировки, возможно зонирование<br />Электрическая мощность 30 кВт<br />Потолки высотой от <b>3,8 - 7 метров</b><br />Охранно-пожарная сигнализация<br /><b>Санузел на этаже</b><br /><b>Вход общий</b><br /><br /><b>ДОПОЛНИТЕЛЬНАЯ ИНФОРМАЦИЯ:</b><br />Арендная ставка &ndash; <b>600р. в месяц за м2 (+НДС 5%). Договор с ООО</b><br />Обеспечительный платеж в размере одного месячного платежа<br /><b>Коммунальные платежи (электричество)</b> оплачиваются <b>дополнительно</b> ID объекта в нашей базе: 8875
Объявление № 23263773
Дата подачи:
3 октября 2025 г. 0:02
Дата обновления:
2 октября 2025 г. 6:00
Просмотров 7 Хотите продать быстрее?

Продавец
Агентство недвижимости:
Анжелика Сергеевна
email: 9122747215@mail.ru
Показать номер телефона
Пожаловаться
Комментарии:
Добавить