Сдам коммерческую недвижимость в Екатеринбурге

Коммерческая недвижимость в Екатеринбурге
Цена 78 240 р.
Вид недвижимости Нежилые свободного назначения
Район Эльмаш
Адрес ул. Старых Большевиков, 2
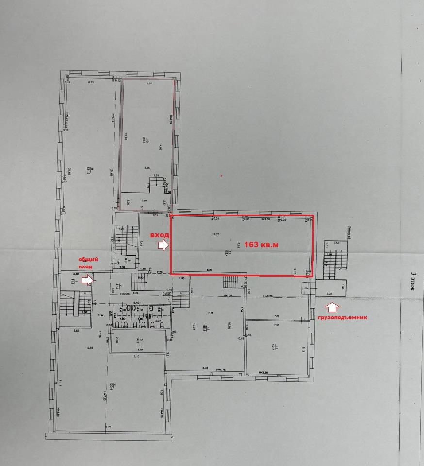
Площадь помещения 163 м2
Универсальное помещение <b>163 кв.м, на 3 этаже</b> административного здания. Под швейный цех , офис, мелкое производство и др. Грузоподъемник до<b> 500кг.</b> <b>Санузел на этаже.</b> Мощность <b>30 кВт. Общий вход</b> (по лесенке). Парковка наземная. <br /><br /><b>ЛОКАЦИЯ:</b> остановка транспорта <b>Краснофлотцев</b><br />Есть два заезда через шлагбаум со стороны улиц <b>Старых Большевиков, Шефская</b><br /><br /><b>ХАРАКТЕРИСТИКА ОБЪЕКТА:</b><br /><b>3 этаж</b>/3 этажей, общая площадь 163 кв.м<br />Электрическая мощность <b>30 кВт</b><br />Потолки высотой <b>4,0 метра</b><br />Охранно-пожарная сигнализация<br />Грузоподъемник до <b>500кг</b><br /><b>Санузел на этаже</b><br /><br /><b>ДОПОЛНИТЕЛЬНАЯ ИНФОРМАЦИЯ:</b><br /><b>Арендная ставка &ndash; 480р. в месяц за м2, включая НДС 5%. Договор с ООО</b><br /><b>В арендную ставку входит отопление</b><br />Коммунальные платежи (вода, электричество) за дополнительную плату<br />Обеспечительный платеж в размере одного месячного платежа<br />Есть возможность арендовать другие помещения разной площади на 3 этаже ID объекта в нашей базе: 9883
Объявление № 23979981
Дата подачи:
25 марта 2026 г. 5:43
Дата обновления:
24 марта 2026 г. 6:00
Просмотров 1 Хотите продать быстрее?

Продавец
Агентство недвижимости:
Анжелика Сергеевна
email: 9122747215@mail.ru
Показать номер телефона
Пожаловаться
Комментарии:
Добавить