Сдам коммерческую недвижимость в Екатеринбурге

Коммерческая недвижимость в Екатеринбурге
Цена 77 000 р.
Вид недвижимости Нежилые свободного назначения
Адрес ул. Орджоникидзе, 17
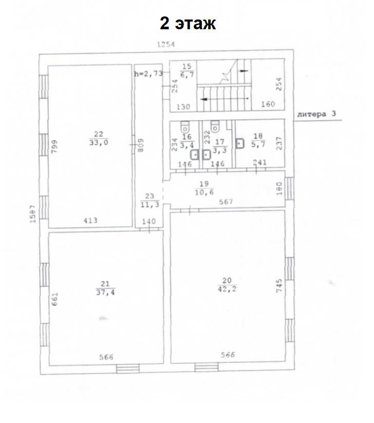
Площадь помещения 154 м2
Аренда <b>154м2</b>, в 2-х этажном отдельно-стоящем здании, <b>2 этаж</b>, под <b>офис, услуги для клиентов, швейное производство.</b> Здание находится на территории промзоны, охраняемая территория. Вход общий в здание. <b>Санузлы на этаже.</b> <b>Планировка кабинетная.</b> Высота потолков &ndash;<b> 2,73 метра. Парковка на 20 м/мест.</b> <br /><br /><b>ЛОКАЦИЯ:</b> Остановка общественного транспорта &ndash; <b>БАТП (автобус №5)</b><br />Соседи: торговый дом, складские помещения торговых компаний.<br /><br /><b>ХАРАКТЕРИСТИКА ОБЪЕКТА:</b><br />Общая площадь <b>2 этаж/2 этажей &ndash; 154 м2</b><br />Три кабинета: <b>42,кв.м; 37,4 кв.м; 33 кв.м</b><br />Высота потолков <b>&ndash; 2,73 метра</b><br /><b>2 санузла </b>на этаже<br />Мощность - <b>15кВт</b><br />Охранно-пожарная сигнализация<br /><br /><b>ДОПОЛНИТЕЛЬНАЯ ИНФОРМАЦИЯ:</b><br />Арендная ставка: <b>500 руб.за м2,</b> коммунальные платежи оплачиваются дополнительно <br /><b>!Дополнительно можно арендовать складское помещение, 1 этаж (по договоренности)</b><br />Обеспечительный платеж в размере одного месячного платежа ID объекта в нашей базе: 9880
Объявление № 23979978
Дата подачи:
25 марта 2026 г. 5:43
Дата обновления:
24 марта 2026 г. 6:00
Просмотров 1 Хотите продать быстрее?

Продавец
Агентство недвижимости:
Анжелика Сергеевна
email: 9122747215@mail.ru
Показать номер телефона
Пожаловаться
Комментарии:
Добавить