Трехкомнатная квартира 70,00 м2 по ул. ул. Стахановская 3 за 5500000 руб.

Трехкомнатная квартира по ул. ул. Стахановская, 3 в Екатеринбурге
Цена 5 500 000 р. (78 571 р./м2)
Подать заявку на ипотеку
Район Уралмаш
Адрес ул. Стахановская, 3
Этаж 3/5
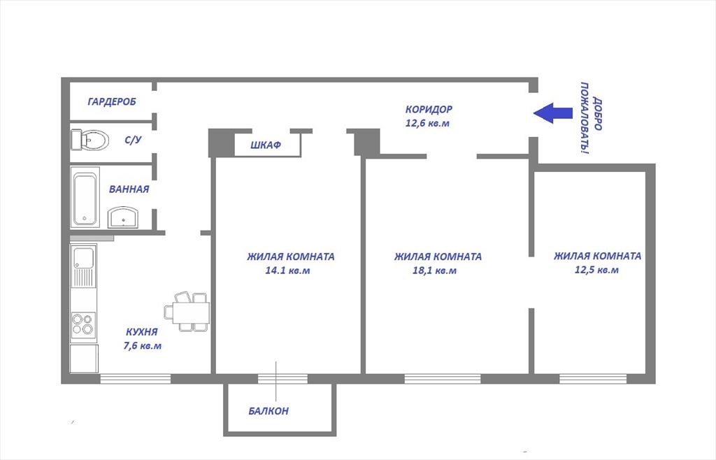
Площадь общая 70 м2, жилая 44,4 м2, кухни 7 м2
Кол-во комнат Трехкомнатная
<p>Продается уютная трехкомнатная квартира в сталинском доме. Ищете идеальное жилье? У нас есть то, что вам нужно.<br /><br />Квартира обладает следующими преимуществами:<br />- Три комнаты &mdash; простор для семьи и создания комфортного рабочего уголка. <br />- Сталинский дом с высокими потолками и классической архитектурой. <br />- Мало соседей, отличная шумоизоляция. <br />- Третий этаж &mdash; удобный доступ, не слишком высоко и не слишком низко. <br />- Требуется ремонт &mdash; отличная возможность воплотить свои дизайнерские идеи.<br /><br />Местоположение:<br />- Всего в десяти минутах от метро &mdash; легко добраться до любой части города. <br />- Тихий зеленый двор &mdash; идеальное место для отдыха и прогулок. <br />- Рядом с домом &mdash; все необходимое для комфортной жизни: магазины, школы, детские сады, парк.<br /><br />Цена: привлекательная и конкурентоспособная. Звоните, чтобы узнать подробности!</p> ID объекта в нашей базе: 9205
Описание дома
Этажность дома 5
Объявление № 23631583
Дата подачи:
18 ноября 2025 г. 6:55
Дата обновления:
5 декабря 2025 г. 9:33
Просмотров 4 Хотите продать быстрее?

Продавец
Агентство недвижимости:
Екатерина Владимировна
email: mmir.ekb@yandex.ru
Показать номер телефона
Пожаловаться
Комментарии:
Добавить