Сдается квартира м2 по ул. ул. Тенистая 6/2 за 30000 руб.

Квартира в Екатеринбурге
Цена 30 000 р.
Адрес ул. Тенистая, 6/2
Кол-во комнат Двухкомнатная
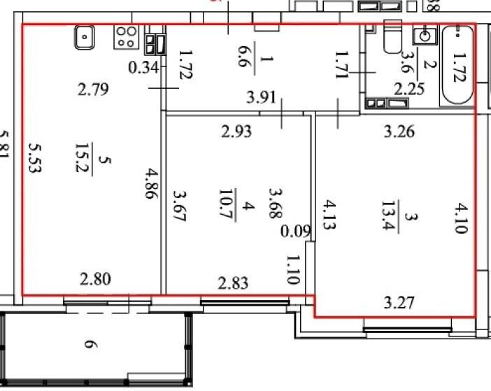
<p>Адрес: г.Екатеринбург, район Верх-Исеткий, мкр. Широкая речка, <b>ул.Тенистая д.6/2 ЖК "Домино"</b></p> <p>До м: это многоэтажный 10-ти жилой ,2 подъезд, 4/9 этажа, лиф в доме грузо пассажирский.</p> <p>Преимущества: Закрытый дом, Видео наблюдение, Охрана, Подземный паркинг в доме. Центральное отопление. В квартирах предусмотрены счётчики на тепло, воду, электричество,отопление. Благоустроенная территория двора ,детская и спортивная площадка.</p> <p><b>Квартира:< ;/b></p> <p>Просторная двухкомнатная квартира на 4-м этаже с лоджией.</p> <p>Отличная планировка: Общая площадь: 50 кв.м, кухня-зал 16 кв. м с выходом на лоджию . Высота потолков 2.7 кв.м.</p> <p>Коридор просторный и санузел совмещенный оборудован ванной -отделка кафель. Кликайте на фото планировки в объявление.</p> <p>Мебель: кухонный гарнитур, 2 стулья,1 стол кухонный, диван двухспальный, тумба под ТВ.</p> <p>Техника: Холодильник; стиральная машина; стеклокерамика -плита электро с духовым шкафом ; Вытяжка.</p> <p>Для кого: Пожелание: приоритет - семейной паре с детьми также рассмотрим.<br /><b>Квартира освобождена сдается на долгий срок, чистоплотным аккуратным гражданам. Ограничения: без животных, курение в квартире запрещено.</b></p> <p>Инфраструк тура: школа, детские сады, магазины, супермаркеты Магнит,Перекресток 2шт, кафе быстрое питание остановка общественного транспорта возле дома 5 минут пешком.</p> <p>Транспорт: автобусы 64,85 и т.д много в пешей доступности.</p> <p>Стоимость аренды квартиры: 33000 рублей +коммунальные платежи (лето 3500р/зима 5000р)</p> <p>Коммунальные платежи оплачиваются отдельно, по счётчикам.</p> <p>На длительный срок. Заезд возможен с <b>12 апреля 2</b><b>026</b><b> г. </b>Просмотр по договоренности<b>.Звоните!</b></p&g t; <p>Страховой депозит: 30 000 рублей, можно разбить оплату на два месяца.</p> <p>Минимальный срок аренды 11 месяцев. (Только долгосрочная аренда квартиры).</p> <p><b>На сделку с собой:</b> паспорт и оплату</p> <p>1 вариант полная оплата 60 000рублей</p> <p>2 вариант рассрочка (на 2 месяца)45000 рублей.<b> Звоните!</b></p> <br />аренда( для семьи или пары или семьи с детьми) внимание с животными не возьму. Квартира готова к заселению. <br />У собственника могут дополнительные вопросы к арендаторам. Подробно по телефону: Звоните! Работаю без выходных, покажу квартиру в удобное для Вас время!. ID объекта в нашей базе: 5404
Объявление № 23943481
Дата подачи:
3 марта 2026 г. 5:37
Дата обновления:
3 марта 2026 г. 5:37
Просмотров 10 Хотите продать быстрее?

Продавец
Агентство недвижимости:
Надежда Мироновна
email: Samotis.74@mail.ru
Показать номер телефона
Пожаловаться
Комментарии:
Добавить