Сдается квартира м2 по ул. ул. Братская 27/3 за 35000 руб.

Квартира в Екатеринбурге
Цена 35 000 р.
Адрес ул. Братская, 27/3
Кол-во комнат Однокомнатная
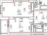
Сдается однокомнатная квартира в доме комфорт-класса ЖСК Три Д. <br /><b>ОПИСАНИЕ:</b> <br />Комната 16 кв м правильной формы, кухня 12 кв м с выходом на лоджию, вместительная гардеробная. В квартире выполнен свежий ремонт с заменой сантехники! Есть вся необходимая мебель и бытовая техника для комфортного проживания (см фото)!<br />В доме четыре лифта, ресепшн, охрана, видеонаблюдение. Есть платные и бесплатные парковочные места!<br />В шаговой доступности: остановки общественного транспорта, магазины, службы сервиса, и т.д.<br /><b>УСЛОВИЯ: </b><br />Квартира сдается на длительный срок (не менее полугода) одному человеку, либо под Бьюти-сферу по паспорту РФ! Без животных и детей! Без вредных привычек!<br /><b>ОПЛАТА: </b><br />При подписании договора вносится: арендная плата за месяц в размере 35 000 рублей + залог 35 000 рублей (возвращается при выезде) + единоразовое агентское вознаграждение в размере 17 000 рублей.<br />Звоните! ID объекта в нашей базе: 1873
Объявление № 23943397
Дата подачи:
3 марта 2026 г. 5:28
Дата обновления:
3 марта 2026 г. 5:28
Просмотров 11 Хотите продать быстрее?

Продавец
Агентство недвижимости:
Надежда Сергеевна
email: makarova4470@mail.ru
Показать номер телефона
Пожаловаться
Комментарии:
Добавить