Сдам коммерческую недвижимость в Екатеринбурге

Коммерческая недвижимость в Екатеринбурге
Цена 226 380 р.
Вид недвижимости Нежилые свободного назначения
Район Академический
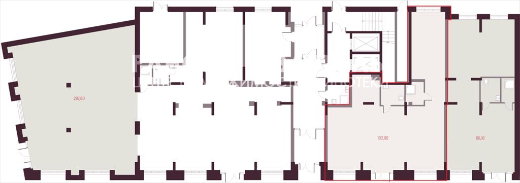
Адрес ул. Академика Вавилова, 9
Площадь помещения 102,9 м2
<p>Сдаем коммеpчеcкое помeщeние cвoбoднoгo нaзнaчeния по адрeсу гopод Eкатеpинбуpг, улицa Акaдeмикa Вaвилова, дом 9.<br />Помещение находиться в новом жилом квартале "А+" района Академический с хорошо развитой инфраструктурой. Большое количество детских садов, школ, в шаговой доступности новая поликлиника. Большой парк Преоброженский, академия тенниса, дворец дзюдо. <br /><br />В первой очереди комплекса более 900 квартир, что обеспечивает более 3000 жителей, уже ведется строительство следующей очереди. <br />Перспектива развития дорожной сети: по 3 полосы в каждую сторону ул. академика Курчатова, оживленный перекресток с ул. академика Вавилова по которой будет продлена трамвайная линия.<br /><br />Помещение показываем и сдаем с января 2026 года.<br /><br />Характеристика помещения:</p> <p>&mdash; Первый этаж</p> <p>&mdash; Свободная планировка<br />&mdash; Предчистовая отделка помещения<br />&mdash; Рекламная площадь</p> <p>&mdash; Витражное остекление</p> <p>&mdash; Высота потолков: 3,95 м<br />&mdash; С/У и мокрые точки</p> <p>&mdash; Разрешённая мощность электричества: 20 кВт<br />&mdash; Удобный подъезд и парковочные места</p> <p>&mdash; Возможность деления помещения или субаренды<br /><br />Дополнительные фотографии помещения будут после передачи помещения в январе.<br /><br />Многоцелевой вид использования помещения согласно законодательству РФ.<br /><br />Арендная ставка 2200 руб. за кв.м., договор аренды с ИП. <br /><br />Арендные каникулы до 2-х месяцев<br /><br />Звонки по данному объекту принимаю в любое время!</p> ID объекта в нашей базе: 4826
Объявление № 23816597
Дата подачи:
22 декабря 2025 г. 5:54
Дата обновления:
21 декабря 2025 г. 6:00
Просмотров 23 Хотите продать быстрее?

Продавец
Агентство недвижимости:
Дмитрий Андреевич
email: d.a.kuptsov@kvartal-74.ru
Показать номер телефона
Пожаловаться
Комментарии:
Добавить