Двухкомнатная квартира 60,40 м2 по ул. ул. Волгоградская 18а за 12000000 руб.

Двухкомнатная квартира по ул. ул. Волгоградская, 18а в Екатеринбурге
Цена 12 000 000 р. (198 675 р./м2)
Подать заявку на ипотеку
Район Ю-З
Адрес ул. Волгоградская, 18а
Этаж 18/25
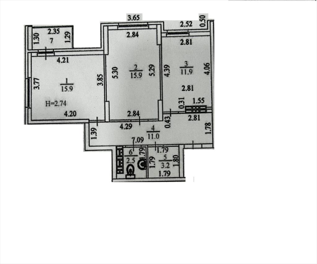
Площадь общая 60,4 м2, жилая 31,8 м2, кухни 12 м2
Кол-во комнат Двухкомнатная
Предлагается к продаже двухкомнатная квартира в ЖК "Московский Квартал", по адресу: ул. Волгоградская, д. 18а.<br /><br />Квартира расположена на 18-м этаже 25-ти этажной секции. Окна выходят на западную и северную стороны света. Общая площадь - 60,4 кв.м., без учета лоджии 3 кв.м. Планировка от застройщика, две раздельные комнаты одинаковой площади до десятых, по 15,9 кв.м. каждая, раздельный санузел и кухня, площадью 12 кв.м.<br /><br />Состояние квартиры хорошее, в комнатах ремонт от застройщика, в санузлах полностью выполнен собственником, т.к. от застройщика была черновая отделка.<br /><br />Один совершеннолетний собственник с момента строительства дома. Ипотека, маткапитал и другие сертификаты не использовали. В собственности более 5 лет.<br /><br />Причина продажи - переезд и покупка новой квартиры в другом городе<br /><br />Документы к сделке готовы. ID объекта в нашей базе: 795
Описание дома
Этажность дома 25
Объявление № 23925667
Дата подачи:
21 февраля 2026 г. 5:49
Дата обновления:
19 марта 2026 г. 15:59
Просмотров 13 Хотите продать быстрее?

Продавец
Агентство недвижимости:
Дмитрий Николаевич
email: dudind@bk.ru
Показать номер телефона
Пожаловаться
Комментарии:
Добавить