Однокомнатная квартира 45,20 м2 по ул. ул. Громова 26/3 за 8600000 руб.

Однокомнатная квартира по ул. ул. Громова, 26/3 в Екатеринбурге
Цена 8 600 000 р. (190 265 р./м2)
Подать заявку на ипотеку
Район Ю-З
Адрес ул. Громова, 26/3
Этаж 7/25
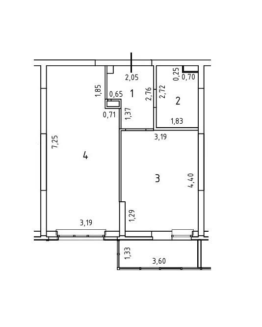
Площадь общая 45,2 м2, жилая 14 м2, кухни 22 м2
Кол-во комнат Однокомнатная
<b>В продаже однокомнатная квартира в новом ЖК Дом на Ясной!<br /></b><br />ЖК Дом на Ясной &mdash; это семейный жилой комплекс комфорт-класса, расположенный между улицами Ясная, Шаумяна, Громова и Волгоградская. <br />Жилой комплекс включает в себя: благоустроенный двор (Двор без машин) с детскими, спортивными площадками, зонами отдыха; подземный паркинг, наземная парковка, коммерческие помещения на первых этажах;<br /><br />- Дом 2025 года постройки;<br /><br />- Квартира с предчистовой отделкой;<br /><br />- Функциональная планировка квартиры: Кухня-гостиная, площадью 22 кв.м., спальная комната, площадью 14 кв.м. с выходом на лоджию, в коридоре есть ниша под шкаф купе. Окна в квартире выходят во двор;<br /><br />- Удобное месторасположение жилого комплекса, рядом все необходимые для комфортного проживания и экономии времени социальные и муниципальные объекты инфраструктуры: детский сад № 115, № 559, школа № 57, МАОУ Средняя общеобразовательная школа № 184 Новая школа, Средняя общеобразовательная школа № 143, Парк имени 50-летия ВЛКСМ, Свердловская областная клиническая больница № 1, Городская клиническая больница № 40, МНТК Микрохирургия глаза, Урал ГУФК, Екатеринбургский институт физической культуры, Спортивная школа Олимпиец, остановки общественного транспорта, банки, магазины, аптеки;<br /><br />- Квартира в чистой продаже. ID объекта в нашей базе: 3631
Описание дома
Этажность дома 25
Объявление № 23717637
Дата подачи:
2 декабря 2025 г. 7:08
Дата обновления:
5 декабря 2025 г. 9:33
Просмотров 3 Хотите продать быстрее?

Продавец
Агентство недвижимости:
Татьяна Николаевна
email: gritsaytn@list.ru
Показать номер телефона
Пожаловаться
Комментарии:
Добавить