Двухкомнатная квартира 42,50 м2 по ул. ул. Чкалова 135 за 5100000 руб.

Двухкомнатная квартира по ул. ул. Чкалова, 135 в Екатеринбурге
Цена 5 100 000 р. (120 000 р./м2)
Подать заявку на ипотеку
Район Ю-З
Адрес ул. Чкалова, 135
Этаж 7/9
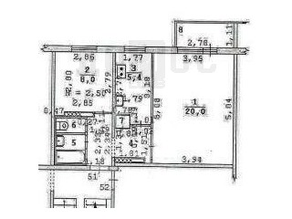
Площадь общая 42,5 м2, жилая 29 м2, кухни 7 м2
Кол-во комнат Двухкомнатная
Продается двухкомнатная квартира в престижном и экологически благополучном районе Юго-Западный. Объект расположен на пересечении улиц Начдива Онуфриева, Амундсена и Академика Бардина, что обеспечивает отличную транспортную доступность до центра города и ключевых магистралей. Главным преимуществом является уникальное расположение с видами из окон: одна сторона дома выходит на благоустроенный парк Чкалова, а противоположная — на обширную лесопарковую зону, гарантируя приватность и круглогодичный контакт с природой. Инфраструктура района полностью сформирована: в шаговой доступности находятся рынок Громова, детские сады, школы, колледж, три медицинских центра и множество магазинов. Квартира имеет изолированную планировку, что оптимально для совместного проживания или возможности обустройства кабинета. Объект находится в состоянии с косметическим ремонтом, что позволяет новому владельцу без значительных затрат и демонтажных работ провести отделку в соответствии с индивидуальными предпочтениями. Подъезд содержится в чистоте, а дом характеризуется спокойной и благополучной атмосферой. Ключевым аргументом является привлекательная цена, сопоставимая со стоимостью однокомнатных квартир. Недвижимость не имеет долговых обязательств и обременений, единственный собственник. Продажа связана с планами по расширению жилплощади. Возможен оперативный показ в удобное время. Ключи в день сделки. ID объекта в нашей базе: 12562
Описание дома
Этажность дома 9
Объявление № 23680832
Дата подачи:
26 ноября 2025 г. 6:46
Дата обновления:
7 декабря 2025 г. 10:03
Просмотров 1 Хотите продать быстрее?

Продавец
Агентство недвижимости:
Нина
email: nini89090834423@yandex.ru
Показать номер телефона
Пожаловаться
Комментарии:
Добавить