Однокомнатная квартира 36,49 м2 по ул. Громова 26 за 6430000 руб.

Однокомнатная квартира по ул. Громова, 26 в Екатеринбурге
Цена 6 430 000 р. (176 213 р./м2)
Подать заявку на ипотеку
Район Ю-З
Адрес Громова, 26
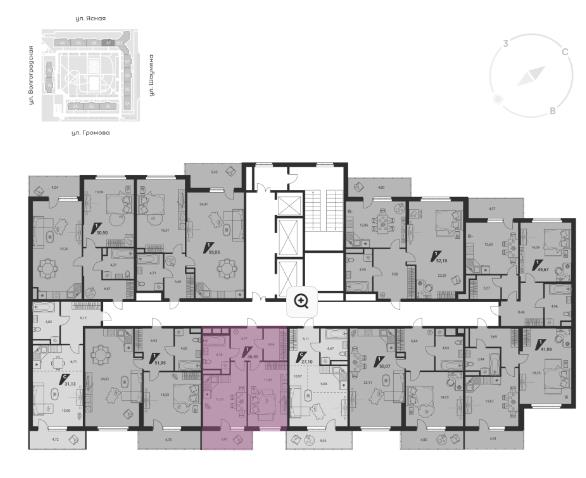
Этаж 7/25
Площадь общая 36,49 м2, жилая 11,83 м2, кухни 11,17 м2
Кол-во комнат Однокомнатная
<p>Уютная евро-двушка (спальня и кухня-гостиная) в районе с развитой инфраструктурой. Срок сдачи 2 квартал 2025 года. Подойдёт как для семьи, так и индивидуального проживания.<br /><br />Гибкий подход, рассмотрим все Ваши предложения по цене.</p> <p>ЖК "Дом на Ясной" от надёжного застройщика Практика стал финалистом в номинациях "Лучший ЖК-новостройка" конкурса, где были представлены более 1000 ЖК из 65 регионов России.</p> <p>Квартира правильной формы, кухня-гостиная с выходом на закрытую лоджию с панорамным остеклением, есть зона для гардероба. Окна (производитель VEKA) выходят во двор на юго-восток. Наружные и межквартирные стены частично выполнены из кирпича, что обеспечивает высокую звукоизоляцию и низкую теплопроводность.</p> <p>Скоростные бесшумные и красивые лифты MATIZ с выходом в подземный паркинг, закрытый двор, охрана с видеонаблюдением.</p> <p>Большой двор: детские и спортивные площадки оборудованы специальными травмобезопасными покрытиями европейских производителей; уникальный ландшафтный дизайн и много зелени.</p> <p>Имеется подземный двухуровневый паркинг с машино-местами от 16 до 30 м2.</p> <p>В шаговой доступности дет.сады, школы, гимназии, спорткомплексы, медучреждения, ТРЦ, парк для прогулок, занятий спортом и выгула собак. Рядом остановки общественного транспорта. Удобный выезд как в сторону центра, так и в сторону объездной дороги.</p> <p>Один взрослый собственник, без обременений.</p> <p>Звоните - отвечу на все вопросы.</p> <p></p> ID объекта в нашей базе: 9121
Описание дома
Этажность дома 25
Объявление № 18316473
Дата подачи:
31 мая 2024 г. 15:59
Дата обновления:
27 декабря 2025 г. 10:03
Просмотров 74 Хотите продать быстрее?

Продавец
Агентство недвижимости:
Денис
email: nassonov@new-orientir.ru
Показать номер телефона
Пожаловаться
Комментарии:
Добавить