Однокомнатная квартира 39,10 м2 по ул. ул. Викулова 24 за 8400000 руб.

Однокомнатная квартира по ул. ул. Викулова, 24 в Екатеринбурге
Цена 8 400 000 р. (214 834 р./м2)
Подать заявку на ипотеку
Район ВИЗ
Адрес ул. Викулова, 24
Этаж 12/25
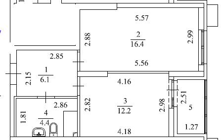
Площадь общая 39,1 м2, жилая 16,4 м2, кухни 12,2 м2
Кол-во комнат Однокомнатная
<p>1-комнатная квартира в ЖК &laquo;Тактика&raquo;, Дом сдан, ключи получены!</p> <p>Продаётся современная 1-комнатная квартира в новом, уже сданном доме жилого комплекса &laquo;Тактика&raquo;! Ключи на руках &mdash; можно заезжать и жить. Отличная планировка. Отличная локация рядом с центром и развитой инфраструктурой. Идеальный вариант для первой собственной квартиры, инвестиции или комфортной жизни.</p> <p>О КОМПЛЕКСЕ: ЖК &laquo;Тактика&raquo; &mdash; это современный комплекс комфорт-класса от надежного застройщика. Дом уже построен и сдан в эксплуатацию, что означает:</p> <p>- Никаких рисков долгостроя. Не нужно ждать годы.</p> <p>- Можно сразу начинать делать ремонт и заселяться.</p> <p>О КВАРТИРЕ:</p> <ul> <li>Площадь: общая 39,1 кв.м.</li> <li>Этаж: 12/25.</li> <li>Планировка: Удачная, функциональная планировка с изолированной комнатой. Есть все необходимые зоны: прихожая , совмещенный санузел, кухня 12,2 кв.м., жилая комната 16,4 кв.м..</li> <li>Состояние: Квартира новая, никто не проживал. Отличная возможность стать первым хозяином.</li> </ul> <p>ЛОКАЦИЯ И ИНФРАСТРУКТУРА: Район отличается развитой инфраструктурой и транспортной доступностью:</p> <ul> <li>Рядом с центром: Быстрый выезд в центр Екатеринбурга.</li> <li>Комплекс расположен в границах улиц Татищева &ndash; Викулова &ndash; Венгерских Коммунаров, возле Акватории Верх-Исетского пруда.</li> <li>Транспорт: Остановки общественного транспорта в шаговой доступности, удобный выезд на основные магистрали.</li> <li>Магазины и услуги: В пешей доступности супермаркеты (&laquo;Пятерочка&raquo;, &laquo;Магнит&raquo; и др.), аптеки, салоны красоты, отделения банков.</li> <li>Образование и здоровье: Детские сады, школы и поликлиники в районе в шаговой доступности.</li> </ul> <p>Персп ективный район &mdash; инфраструктура продолжает развиваться, что положительно влияет на стоимость недвижимости.</p> <p>Идеально для:</p> <ul> <li>Молодой семьи или одного человека, желающего иметь собственное жилье.</li> <li>Инвестора для последующей сдачи в аренду (востребованный район).</li> <li>Покупки для детей/родственников.</li> </ul> <p& gt;Готовы показать квартиру в удобное для вас время. Звоните, чтобы задать вопросы и договориться о просмотре!</p> ID объекта в нашей базе: 983
Описание дома
Этажность дома 25
Объявление № 23891379
Дата подачи:
3 февраля 2026 г. 5:50
Дата обновления:
22 марта 2026 г. 8:33
Просмотров 12 Хотите продать быстрее?

Продавец
Агентство недвижимости:
Светлана Геннадьевна
email: 9826000800@e1.ru
Показать номер телефона
Пожаловаться
Комментарии:
Добавить