Однокомнатная квартира 33,30 м2 по ул. ул. Металлургов/Лоцмановых стр. С3 за 4746000 руб.

Однокомнатная квартира по ул. ул. Металлургов/Лоцмановых, стр. С3 в Екатеринбурге
Цена 4 746 000 р. (142 523 р./м2)
Подать заявку на ипотеку
Район ВИЗ
Адрес ул. Металлургов/Лоцмановых
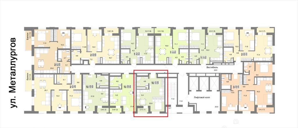
Этаж 14/26
Площадь общая 33,3 м2, жилая 22,6 м2, кухни 5 м2
Кол-во комнат Однокомнатная
<p>ЖК "Новый ВИЗ" (ул.Металлургов - ул. Лоцмановых).</p> <p>Отделка "ПОД КЛЮЧ", тихие 5-камерные окна, качественных ламинат 32кл., обои под покраску, полностью оборудованные сантехникой санузлы - Вы покупаете готовую к проживанию квартиру.</p> <ol> <li>Ипотека возможна.</li> <li>Возможна покупка по программе TRADE-IN (зачет вторичного жилья)!</li> </ol> СОВРЕМЕННЫЕ и ЭРГОНОМИЧНЫЕ планировки!<br /> <p>ДИЗАЙН и архитектура в стиле МОДЕРН с эффектом парящих домов. Отличная ИНФРАСТРУКТУРА: торгово-развлекательные и медицинские центры, школы и садики, отличный выезд в город. Закрытый для посторонних, многоуровневый двор с детскими и спортивными площадками и зелеными зонами.</p> <p>Секция С2 (26 этажей). Сдача дома 3 квартал 2026 года.<br /><br />В объявлении размещены фотографии отделки в ранее сданных секциях.</p> ID объекта в нашей базе: 802
Описание дома
Этажность дома 26
Объявление № 23390610
Дата подачи:
15 октября 2025 г. 7:55
Дата обновления:
16 февраля 2026 г. 17:55
Просмотров 31 Хотите продать быстрее?

Продавец
Агентство недвижимости:
Николай
email: ooo_ekb@mail.ru
Показать номер телефона
Пожаловаться
Комментарии:
Добавить