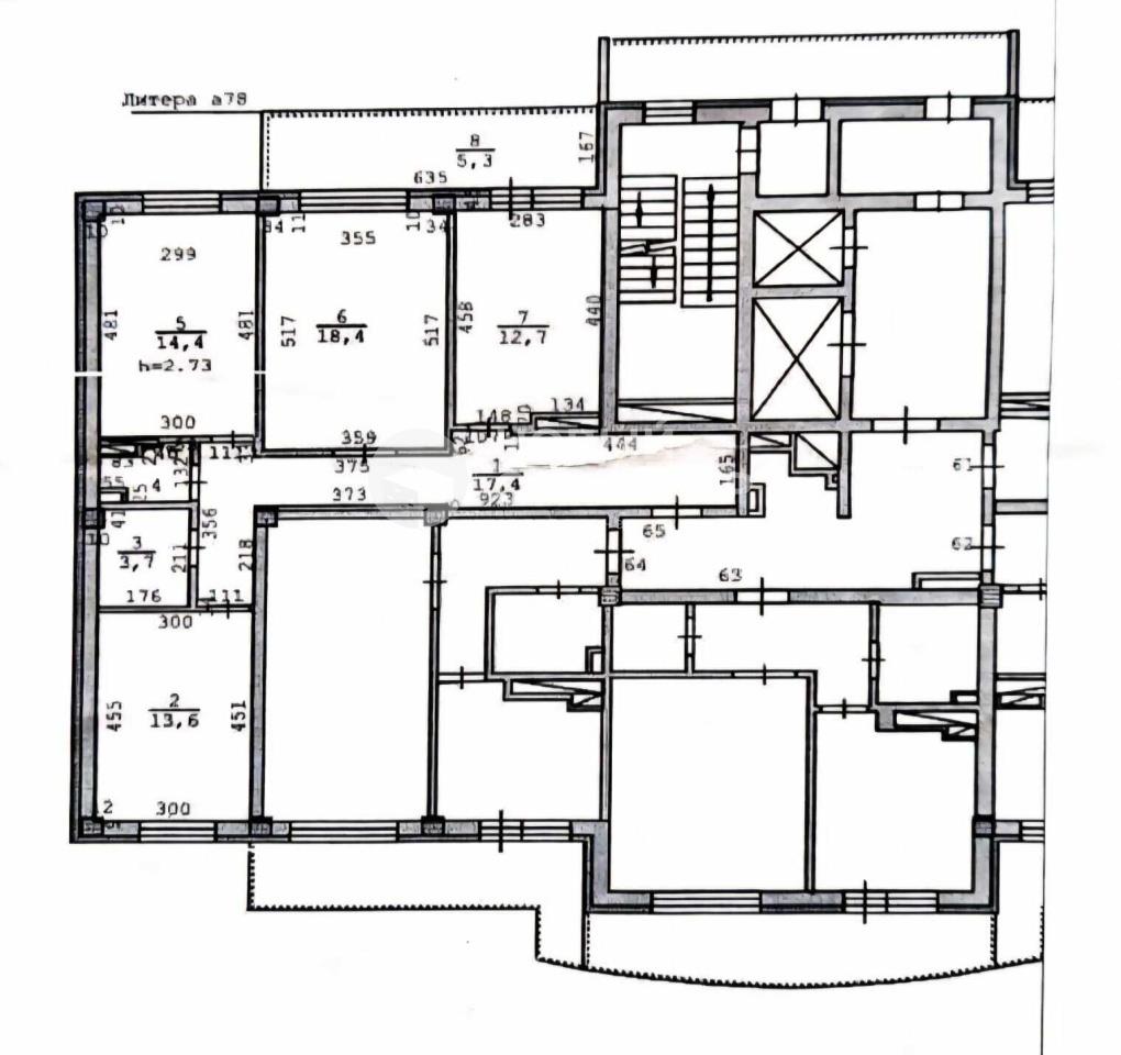
Трехкомнатная квартира 82,10 м2 по ул. ул. Татищева 56 за 14800000 руб.

Трехкомнатная квартира по ул. ул. Татищева, 56 в Екатеринбурге
Цена 14 800 000 р. (180 268 р./м2)
Подать заявку на ипотеку
Район ВИЗ
Адрес ул. Татищева, 56
Этаж 15/17
Площадь общая 82,1 м2, жилая 46,6 м2, кухни 12,7 м2
Кол-во комнат Трехкомнатная
Продает просторная, светлая Трехкомнатная квартира для большой дружной семьи!!!!<br />- 3 изолированные комнаты (18.4 м2, 14.4м2 и 13,6 м2) комнаты правильной формы, вместительная кухня 12.7 м2, шикарная теплая лоджия 6м2, раздельный сан.узел;<br />- ухоженный, закрытый двор с детской и спортивной площадкой;<br />- много парковочных мест во дворе, так же есть подземный паркинг;<br />- в шаговой доступности : школы, гимназии и детские сады, одна из лучших больниц № 33, №11;<br />- Верх-Исетский пруд, парк 22 Партсъезда;<br />- рядом остановки общественного транспорта, транспортная развязка в разные концы города;<br />- до центра города 6 минут;<br />- идеальное месторасположение дома, транспортная доступность в любую точку города (с помощью развязок и выезда на ЕКАД);<br />- развитая инфраструктура района (магазины, аптеки, поликлиники, детские сады, школы, высшие учебные заведения, рестораны, торговый центры, кинотеатры, спортзалы и пр.); <p>Звоните и записывайтесь на просмотр! Не откладывайте свой звонок на завтра, ведь завтра ее может купить уже кто-то другой! РАДЫ ПОМОЧЬ РЕШИТЬ ЛЮБОЙ ВОПРОС С НЕДВИЖИМОСТЬЮ!</p> <br /><br /> <p>-</p> ID объекта в нашей базе: 11805
Описание дома
Этажность дома 17
Объявление № 23369533
Дата подачи:
13 октября 2025 г. 8:01
Дата обновления:
7 декабря 2025 г. 10:03
Просмотров 17 Хотите продать быстрее?

Продавец
Агентство недвижимости:
Юлия Михайловна
email: kochetkova@new-orientir.r u
Показать номер телефона
Пожаловаться
Комментарии:
Добавить