Двухкомнатная квартира 47,60 м2 по ул. ул. Стахановская 32 за 5680000 руб.

Двухкомнатная квартира по ул. ул. Стахановская, 32 в Екатеринбурге
Цена 5 680 000 р. (119 328 р./м2)
Подать заявку на ипотеку
Район Уралмаш
Адрес ул. Стахановская, 32
Этаж 4/9
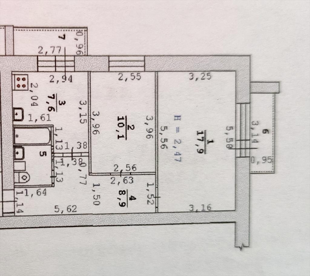
Площадь общая 47,6 м2, жилая 28 м2, кухни 7,6 м2
Кол-во комнат Двухкомнатная
Продается уютная и функциональная двухкомнатная квартира в развитом районе. <br />Идеальный вариант для тех, кто ценит тишину и комфорт «среднего» этажа. <br /><b>Основные характеристики:<br /></b> • <b>Адрес:</b> ул. Стахановская, д. 32. <br />• <b>Этаж:</b> 4-й — самый востребованный вариант, не зависит от лифта и обеспечивает отличный вид. <br />• <b>Планировка:</b> Комнаты изолированные (18 кв. м и 10 кв. м). Никаких проходных зон — у каждого будет свое личное пространство. <br />• <b>Особенность:</b> В квартире сразу <b>ДВА балкона</b>! Один выходит из кухни (мечта любой хозяйки), второй — из просторного зала. Это дает дополнительное место для отдыха или хранения. <br />• <b>Санузел:</b> Совместный, в кафеле <br />• <b>Прихожая:</b> Длинный коридор, где можно удобно разместить вместительную систему хранения или шкаф-купе. <br /><b>Состояние и инфраструктура:</b> Квартира очень теплая и светлая. Дом расположен в районе с отличной транспортной развязкой. В шаговой доступности школы, детские сады, сетевые магазины и остановки общественного транспорта. Один взрослый собственник. Чистая продажа. <br /><b>Звоните и записывайтесь на просмотр!</b> ID объекта в нашей базе: 5292
Описание дома
Этажность дома 9
Объявление № 23917595
Дата подачи:
17 февраля 2026 г. 5:53
Дата обновления:
23 марта 2026 г. 8:04
Просмотров 9 Хотите продать быстрее?

Продавец
Агентство недвижимости:
Александра Васильевна
email: mazur.fin@mail.ru
Показать номер телефона
Пожаловаться
Комментарии:
Добавить