Однокомнатная квартира 47,40 м2 по ул. ул. Рощинская 21/1 за 6100000 руб.

Однокомнатная квартира по ул. ул. Рощинская, 21/1 в Екатеринбурге
Цена 6 100 000 р. (128 692 р./м2)
Подать заявку на ипотеку
Район Уктус
Адрес ул. Рощинская, 21/1
Этаж 7/27
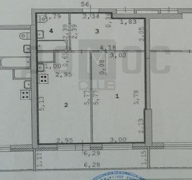
Площадь общая 47,4 м2, жилая 17 м2, кухни 17 м2
Кол-во комнат Однокомнатная
<b>СРОЧНАЯ ПРОДАЖА!!!<br /><br />ЕВРОДВУШКА с большой лоджией, мебель и техникой.<br /><br />Современный, популярный ЖК &laquo;Тихий Берег&raquo;.<br /></b><br /><b>Квартира УДАЧНОЙ ПЛАНИРОВКИ с хорошим ЕСТЕСТВЕННЫМ ОСВЕЩЕНИЕМ, создающим атмосферу уюта и простора.<br /></b><br /><b>Адрес: г. Екатеринбург, ул. Рощинская, 21, к</b><b>орпус 1</b><br /><br /><b>Ключевые преимущества:</b><br /><br />- Всё для жизни в шаговой доступности: Супермаркеты, магазины повседневного спроса, фитнес-клуб для активного образа жизни, аптеки, детский сад и школа &mdash; всё рядом.<br /><br />- Идеальная транспортная доступность: Рядом удобная выездная развязка, что позволяет быстро добраться в любую часть города. Рядом остановки общественного транспорта.<br /><br />- Готова к заселению: остается мебель и техника (холодильник, напольная электро плита, стиральная машинка, телевизор). <br /><br /><b>Идеально подходит для:</b><br /><br />- Молодых пар или семьи с ребенком.<br /><br />- Специалиста, желающего жить в современном районе с развитой инфраструктурой.<br /><br />- Инвестора для выгодного вложения с последующей сдачей в аренду.<br /><br />&middot; Студента, чьи родители хотят обеспечить комфортное и безопасное жильё.<br /><br /><b>Сделка прозрачная, все документы готовы. Приглашаем на просмотр!</b> ID объекта в нашей базе: 13757
Описание дома
Этажность дома 27
Объявление № 23906465
Дата подачи:
11 февраля 2026 г. 5:45
Дата обновления:
24 марта 2026 г. 8:04
Просмотров 4 Хотите продать быстрее?

Продавец
Агентство недвижимости:
Наталья Викторовна
email: natalaviktoromna@gmail.co m
Показать номер телефона
Пожаловаться
Комментарии:
Добавить