Двухкомнатная квартира 44,80 м2 по ул. ул. Уральская 60 за 4900000 руб.

Двухкомнатная квартира по ул. ул. Уральская, 60 в Екатеринбурге
Цена 4 900 000 р. (109 375 р./м2)
Подать заявку на ипотеку
Район Пионерский
Адрес ул. Уральская, 60
Этаж 5/5
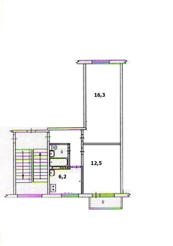
Площадь общая 44,8 м2, жилая 30 м2, кухни 6 м2
Кол-во комнат Двухкомнатная
Продам 2 комнатную квартиру, 5 этаж, изолированные комнаты на разные стороны, пластиковые окна, балкон. В подвале за квартирой закреплено помещение для хранения вещей. Чистый подъезд, большой зеленый двор. Удобное расположение дома, все виды транспорта, магазины, торговые центры, детские сады, школы в доступности 5-10 минут пешком. Чистая продажа, быстрый выход на сделку. ID объекта в нашей базе: 3868
Описание дома
Этажность дома 5
Объявление № 24006738
Дата подачи:
10 апреля 2026 г. 5:34
Дата обновления:
15 апреля 2026 г. 6:12
Просмотров 3 Хотите продать быстрее?

Продавец
Агентство недвижимости:
Андрей Алексеевич
email: kaa2507@yandex.ru
Показать номер телефона
Пожаловаться
Комментарии:
Добавить