Двухкомнатная квартира 45,00 м2 по ул. ул. Блюхера 57 за 6120000 руб.

Двухкомнатная квартира по ул. ул. Блюхера, 57 в Екатеринбурге
Цена 6 120 000 р. (136 000 р./м2)
Подать заявку на ипотеку
Район Пионерский
Адрес ул. Блюхера, 57
Этаж 8/9
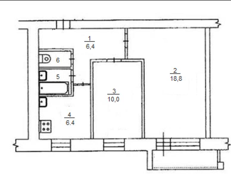
Площадь общая 45 м2, жилая 28,8 м2, кухни 6,4 м2
Кол-во комнат Двухкомнатная
<p>ПРИНЯТ АВАНС! Квартира в теплом, кирпичном доме. Сделан свежий ремонт в подъезде. В квартире установлена новая входная дверь, пластиковые стеклопакеты, натяжной потолок. Балкон застеклен. В санузле кафель и поменяны все стояки.</p> <p>В стоимость квартиры входит кухонный гарнитур и шкаф-купе.</p> <p>Очень удобная транспортная развязка и быстрый выезд из города в разных направлениях. В непосредственной близости расположены различные продуктовые и промышленные магазины, школы, гимназии, детские сады, поликлиники, ПВЗ, почта, Сбер и дендрарий.</p> <p>Ипотека возможна. Квартира в чистой продаже.</p> <p>Полный пакет документов, сопровождение и профессиональная поддержка сделки: <br />-опытным агентом и юристом<br />-помощь с ипотекой <br />Гарантия безопасности сделки от агентства "БК_НЕДВИЖИМОСТЬ".</p> ID объекта в нашей базе: 3241
Описание дома
Этажность дома 9
Объявление № 23951219
Дата подачи:
7 марта 2026 г. 5:30
Дата обновления:
15 марта 2026 г. 8:04
Просмотров 2 Хотите продать быстрее?

Продавец
Агентство недвижимости:
Елена Аркадьевна
email: nikoly@e1.ru
Показать номер телефона
Пожаловаться
Комментарии:
Добавить