Трехкомнатная квартира 65,80 м2 по ул. ул. Советская 39 за 8910000 руб.

Трехкомнатная квартира по ул. ул. Советская, 39 в Екатеринбурге
Цена 8 910 000 р. (135 410 р./м2)
Подать заявку на ипотеку
Район Пионерский
Адрес ул. Советская, 39
Этаж 6/16
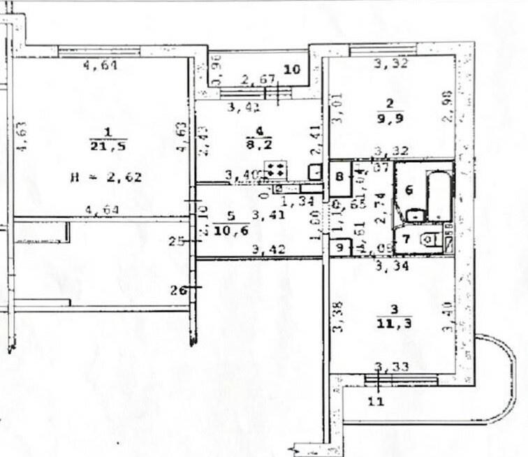
Площадь общая 65,8 м2, жилая 42,7 м2, кухни 8,2 м2
Кол-во комнат Трехкомнатная
Продаётся квартира с удобной планировкой, просторный зал, уютные спальные комнаты, широкий коридор позволяет установить вместительный шкаф купе, в санузле имеется водонагреватель, в ванной место под стиральную машину и удобный шкаф для принадлежностей.<br /><br />Во всей квартире произведена замена электропроводки на медный кабель. Покупателям остаётся кухонный гарнитур, с варочной поверхностью, духовым шкафом, вытяжкой и микроволновая печь.<br /><br />На входе в квартиру усиленная сейф дверь. На лестничной площадке имеется ограждённое пространство на две квартиры. <br /><br />Дом расположен очень удачно, рядом проходят маршруты всех видов транспорта, несколько детских садов и школ, а также масса магазинов.<br /><br />Возможен обмен на вашу недвижимость. ID объекта в нашей базе: 1856
Описание дома
Этажность дома 16
Объявление № 23089869
Дата подачи:
30 июля 2025 г. 9:33
Дата обновления:
6 декабря 2025 г. 9:33
Просмотров 21 Хотите продать быстрее?

Продавец
Агентство недвижимости:
Сергей Александрович
email: perepelkin_c@mail.ru
Показать номер телефона
Пожаловаться
Комментарии:
Добавить