Однокомнатная квартира 34,80 м2 по ул. ул. Мамина-Сибиряка 36б за 10200000 руб.

Однокомнатная квартира по ул. ул. Мамина-Сибиряка, 36б в Екатеринбурге
Цена 10 200 000 р. (293 103 р./м2)
Подать заявку на ипотеку
Район Центр
Адрес ул. Мамина-Сибиряка, 36б
Этаж 27/31
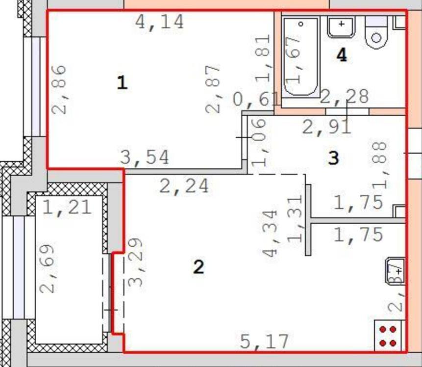
Площадь общая 34,8 м2, жилая 11,3 м2, кухни 15,4 м2
Кол-во комнат Однокомнатная
<p>Дом сдан! Ключи на сделке! Без залогов и обременений!<br /><br />Продаётся видовая 1 комнатная квартира с функционалом 2х комнатной, на 27 этаже, откуда открывается шикарный вид на город и городской пруд. </p> <p>Функциональная планировка (просторный холл с нишей под встроенный шкаф, кухня-гостиная, изолированная спальня, совмещённый санузел, лоджия)</p> <p>Квартира расположена в Жилом квартале &laquo;Екатерининский парк&raquo;, который расположен в центре города Екатеринбурга на пересечении улиц Азина &ndash; Свердлова &ndash; Мамина-Сибиряка &ndash; Шевченко, уникальный район с уже сложившийся инфраструктурой, школы, детские сады, храмы, Театр юного зрителя, Дом музыки, Государственная академическая филармония, Камерный театр, Литературный квартал, ККТ, &laquo;Космос&raquo;, ДИВС и всё находится на расстоянии вытянутой руки .</p> <p>Отделка &laquo;под ключ&raquo; (обои под покраску, натяжной потолок, ламинат, сан техника (унитаз и раковина), межкомнатные двери), радиаторы с терморегуляторами и горизонтальной разводкой. Установлены телеметрические счётчики на свет, тепло и воду, электроэнергию (двухтарифные).</p> <p>- дизайнерские холлы, которые создадут атмосферу тепла и уюта с первого момента, а панорамные входные группы без ступеней обеспечат комфорт и уют.</p> <p>- колясочные, на первом этаже предусмотрено отдельное помещение для хранения колясок и спортивного инвентаря.</p> <p>Закрытая территория с охраной, двор без машин, освещение всей территории, круглосуточное видеонаблюдение обеспечивает безопасность жителям ЖК.</p> <p>Жилые кварталы &laquo;Екатерининский парк&raquo; представляют пример современного европейского стиля, будут двумя пешеходными бульварами и одним проспектом. Идеальный ЖК для комфортной жизни с транспортной доступностью и развитой инфраструктурой.</p> ID объекта в нашей базе: 250
Описание дома
Этажность дома 31
Объявление № 23778564
Дата подачи:
12 декабря 2025 г. 7:10
Дата обновления:
25 декабря 2025 г. 10:03
Просмотров 9 Хотите продать быстрее?

Продавец
Агентство недвижимости:
Мария Александровна
email: dudnikova.m2@yandex.ru
Показать номер телефона
Пожаловаться
Комментарии:
Добавить