Трехкомнатная квартира 79,00 м2 по ул. ул. Уктусская 42 за 22500100 руб.

Трехкомнатная квартира по ул. ул. Уктусская, 42 в Екатеринбурге
Цена 22 500 100 р. (284 811 р./м2)
Подать заявку на ипотеку
Район Автовокзал
Адрес ул. Уктусская, 42
Этаж 6/9
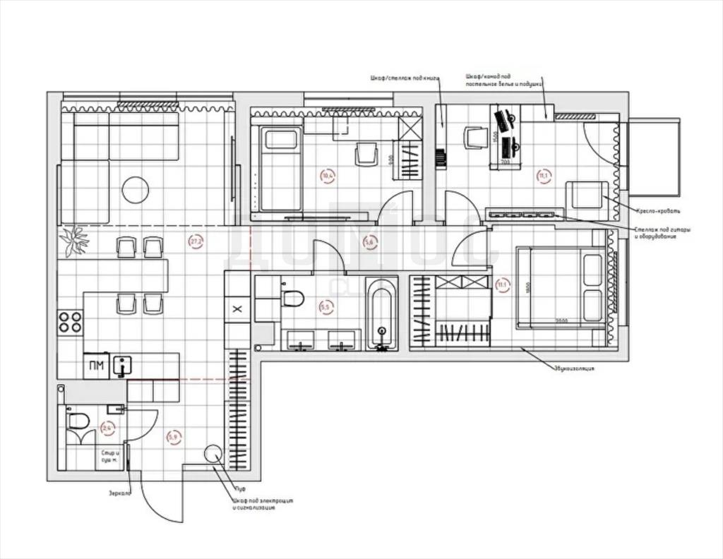
Площадь общая 79 м2, жилая 32,6 м2, кухни 27,2 м2
Кол-во комнат Трехкомнатная
<p><b>ОБЪЕКТ РЕАЛЬНЫЙ! ФОТО РЕАЛЬНЫЕ!<br /></b> <br />Роскошная 3-комнатная квартира в Клубном доме &laquo;Суриков&raquo; с удачной планировкой. Создана<br />дизайнерской студией &laquo;Преобразователь&raquo;. В основу дизайна заложена философия<br />минимализма и лаконичности. Место, где можно свободно дышать, жить, творить и<br />быть в унисон с собой и окружающими.<br /><br />Квартира представляет собой уютное пространство, созданное c использованием новейших материалов и тенденций<br />в дизайне. Пространство получилось объемным и приятным для проживания благодаря<br />светлым оттенкам в интерьере, обилию белого цвета и большим окнам. Вечерний<br />дизайн проработан за счет точечного освещения, интерьер преображается и каждый<br />миллиметр пространства выглядит по-другому.<br /><br />Квартира обладает двумя спальнями, кабинетом с балконом и просторной кухней-гостиной<br />более 27 кв.м., ванной комнатой и вторым с/у. Превосходный вариант для<br />проживания молодой семьи с ребенком!<br /><br />Кухня оборудована современной бытовой техникой,<br />включая: холодильник, варочную поверхность на 4 секции, духовой шкаф с функцией<br />СВЧ, посудомоечную машину, фильтр воды и измельчитель под раковиной. Также в<br />квартире есть стиральная машина с дополнительной функцией сушки белья.<br /><br />Мебель в квартире подобрана с учетом не только<br />эстетических критериев, но и функциональности. В гостиной расположен удобный<br />диван и зона ТВ, в спальне - комфортная кровать и гардеробная. Продумана<br />эргономика мест хранения. Ванная комната оборудована современными<br />санитарно-техническими устройствами и качественной сантехникой. Акцентные зоны<br />выполнены в премиальных материалах.<br /><br />Клубный дом<br />&laquo;Суриков&raquo; предлагает широкий спектр инфраструктуры для комфортного проживания,<br />включая детские площадки, террасу на крыше, которая приглашает насладиться<br />свежим воздухом и теплый паркинг. Внутренний двор закрыт от машин. Вы будите<br />чувствовать себя в уединении, но всего в 10 минутах от центра города. Также<br />рядом с жилым комплексом находятся парки и зоны отдыха.<br /><br />Эта волшебная дизайнерская 3-комнатная квартира с мебелью и техникой станет<br />идеальным выбором для тех, кто ценит комфорт и качество. Она создаст атмосферу<br />уюта и спокойствия, в которой каждый день будет наполнен позитивными эмоциями.</p> ID объекта в нашей базе: 9487
Описание дома
Этажность дома 9
Объявление № 22389313
Дата подачи:
29 мая 2025 г. 7:43
Дата обновления:
6 декабря 2025 г. 9:33
Просмотров 33 Хотите продать быстрее?

Продавец
Агентство недвижимости:
Ирина Андреевна
email: Bender_irina@mail.ru
Показать номер телефона
Пожаловаться
Комментарии:
Добавить