Однокомнатная квартира 28,00 м2 по ул. ул. Краснолесья 108/3 за 4650000 руб.

Однокомнатная квартира по ул. ул. Краснолесья, 108/3 в Екатеринбурге
Цена 4 650 000 р. (166 071 р./м2)
Подать заявку на ипотеку
Район Академический
Адрес ул. Краснолесья, 108/3
Этаж 3/25
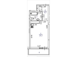
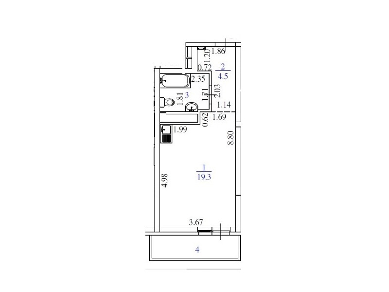
Площадь общая 28 м2, жилая 19,3 м2, кухни 0 м2
Кол-во комнат Однокомнатная
<p><b>ВОЗМОЖНА СЕМЕЙНАЯ ИПОТЕКА!<br /></b><br />Продается квартира в ЖК &laquo;Добрый&raquo;, в семейном квартале для жизни класса Комфорт Плюс в Академическом.<br />Дом сдан в июле 2025 года. <br />Продажа по ДКП. Возможна семейная ипотека.<br /><br />Плюсы ЖК:<br />- закрытая территория,<br />- ⁠ отделка "под ключ" от застройщика: ламинат, обои, двери, натяжной потолок, сантехника и керамическая плитка в санузлах;<br />- ⁠ своя газовая котельная: низкий коммунальные платежи!<br /><br />Жилой комплекс не перегружен плотной застройкой вокруг, это даст жителям ощущения приватности добавит света и тишины.</p> <p>ЖК Семейный квартал &laquo;Добрый&raquo; расположился в развитой части Академического на перекрёстке ул. Краснолесья-ул. Рябинина. Вся инфраструктура здесь уже готова и находится в шаговой доступности. Здесь Вы найдёте для комфортной жизни: школы и детские сады, медицинские центры, спортивные секции, банки, ТЦ Академический и гипермаркет &laquo;Лента&raquo;.</p> <p>Дв оровое пространство выполнено в концепции &laquo;безбарьерная среда&raquo;, без бордюров, пандусов и лестниц, вся территория будет находиться на одном уровне, не создавая никаких помех для передвижения. Главная особенность, которой точно нет ни в одном дворе Академического, большой многофункциональный корт, который сделает спортивную жизнь жителей независимой от погодных условий. Закрытый двор, без машин. Масса детских комплексов с горками, песочницами, не оставят равнодушными ни одного маленького жителя, а взрослые смогут отдыхать комфортных, лаундж зонах.</p> <p>Инженерные системы в семейном квартале &laquo;Добрый&raquo; идентичны тем, что устанавливается в домах бизнес-класса. Бесшумные лифты, система принудительная вентиляции. Собственная крышная газовая котельная, жильцы квартала не будут зависеть от опрессовок летом, включать отопление в удобное им время зимой, а при этом платить за коммунальные услуги меньше.<br /><br />Успевайте купить.</p> <p>Звоните!</p> ID объекта в нашей базе: 771
Описание дома
Этажность дома 25
Объявление № 23089950
Дата подачи:
30 июля 2025 г. 9:49
Дата обновления:
10 апреля 2026 г. 8:42
Просмотров 40 Хотите продать быстрее?

Продавец
Агентство недвижимости:
Николай
email: ooo_ekb@mail.ru
Показать номер телефона
Пожаловаться
Комментарии:
Добавить