Однокомнатная квартира 30,20 м2 по ул. ул. Коммунистическая 1 за 1950000 руб.

Однокомнатная квартира по ул. ул. Коммунистическая, 1 в Екатеринбурге
Цена 1 950 000 р. (64 570 р./м2)
Подать заявку на ипотеку
Адрес ул. Коммунистическая, 1
Этаж 2/5
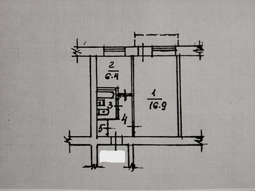
Площадь общая 30,2 м2, жилая 20 м2, кухни 8 м2
Кол-во комнат Однокомнатная
<p>Предлагаем к продаже однокомнатную квартиру, расположенную по адресу: г. Нижние Серги, ул. Коммунистическая 1.</p> <p>Квартира находится на втором этаже пятиэтажного кирпичного дома. Общая площадь 30,2 кв.м.</p> <p>В квартире сделан качественный капитальный ремонт. Поменяно все (окна, проводка, межкомнатные двери, сантехника, батареи). Состояние &ndash; заезжай и живи, ничего делать не нужно, никаких вложений в квартиру не требуется.</p> <p>Санузел совмещенный, облицован кафельной плиткой, стоят счетчики ГВС и ХВС. В кухне газ.</p> <p>В комнате выход на застекленный балкон.</p> <p>Квартира теплая, светлая и очень уютная. Окна смотрят на храм и лес. Никаких автопарковок и дорог под окнами нет.</p> <p>Дом находится в центре города. Вся инфраструктура в шаговой доступности.</p> <p>Подъезд чистый, ухоженный, установлены пластиковые окна, домофон.</p> <p>Квартира освобождена, ключи можем передать на сделке. Документы готовы, чистая продажа. Рассмотрим все варианты оплаты, любые сертификаты, материнский капитал (областной и федеральный), субсидию за 3-го ребенка (№157-ФЗ от 03.07.2019г.). При необходимости поможем оформить ипотеку на покупку данного объекта.</p> <p>Звоните, покажем в любое удобное для Вас время.</p> ID объекта в нашей базе: 371
Описание дома
Этажность дома 5
Объявление № 24006834
Дата подачи:
10 апреля 2026 г. 5:45
Дата обновления:
13 апреля 2026 г. 8:42
Просмотров 4 Хотите продать быстрее?

Продавец
Агентство недвижимости:
Александр Сергеевич
email: director@ocn96.ru
Показать номер телефона
Пожаловаться
Комментарии:
Добавить