Однокомнатная квартира 39,14 м2 по ул. Цвиллинга 7/6 за 7300000 руб.

Однокомнатная квартира по ул. Цвиллинга, 7/6 в Екатеринбурге
Цена 7 300 000 р. (186 510 р./м2)
Подать заявку на ипотеку
Адрес Цвиллинга, 7/6
Этаж 4/10
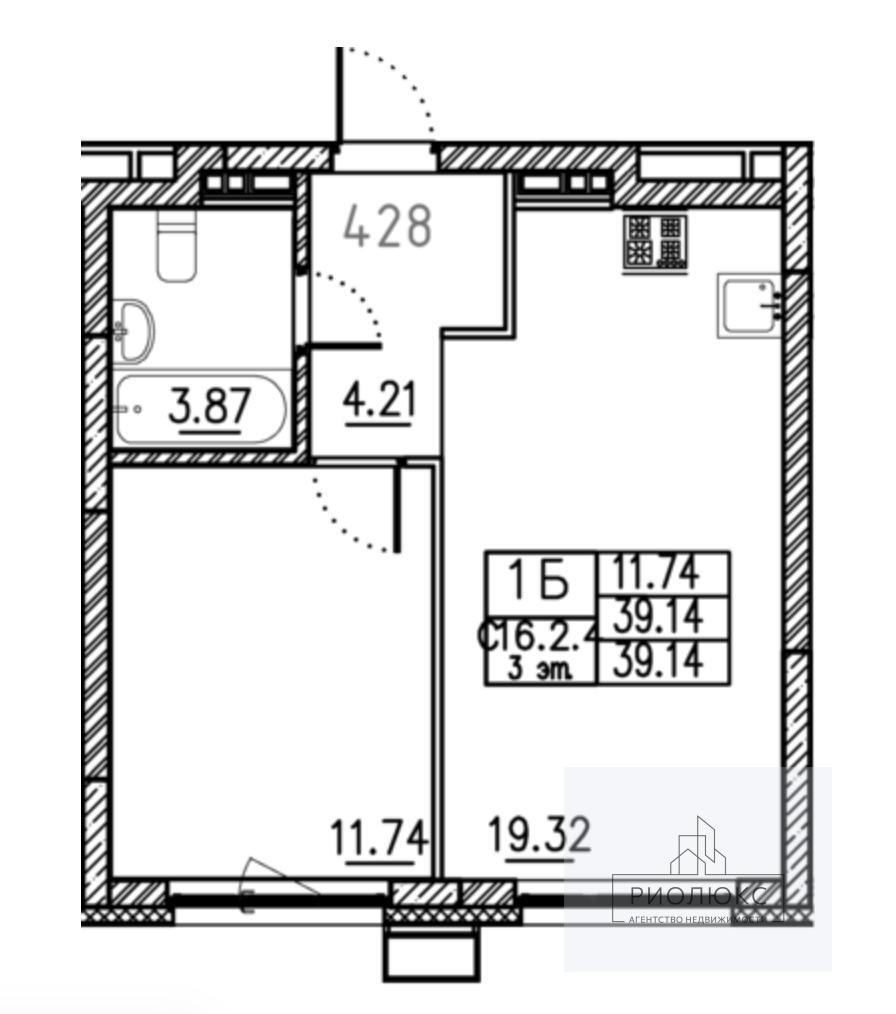
Площадь общая 39,14 м2, жилая 11,74 м2, кухни 19,32 м2
Кол-во комнат Однокомнатная
id:49644. Предложите себе жизнь в новом ритме &mdash; просторная и светлая квартира в новостройке ждёт своего владельца! Расположенная на 4-м этаже 10-этажного монолитно-кирпичного дома, она порадует вас своей функциональностью и комфортом.<br /> <br /> Общая площадь квартиры &mdash; 39,14 кв. м. Главная особенность &mdash; просторная кухня площадью 19,32 кв. м, где с удовольствием разместится не только вся необходимая техника, но и большой обеденный стол для семейных ужинов или дружеских посиделок. Жилая площадь составляет 11,74 кв. м &mdash; уютное пространство, где можно создать атмосферу тепла и комфорта.<br /> <br /> Эта квартира &mdash; идеальный вариант для тех, кто ценит качество, удобство и современные решения в строительстве. Здесь вы сможете реализовать свои дизайнерские идеи и создать дом своей мечты.<br /> <br /> Пишите, звоните! Ответим на все ваши вопросы по недвижимости!
Описание дома
Этажность дома 10
Объявление № 24000079
Дата подачи:
6 апреля 2026 г. 5:37
Дата обновления:
6 апреля 2026 г. 5:37
Просмотров 2 Хотите продать быстрее?

Продавец
Агентство недвижимости:
Татьяна Свяжина
email: tati.riolux@gmail.com
Показать номер телефона
Пожаловаться
Комментарии:
Добавить