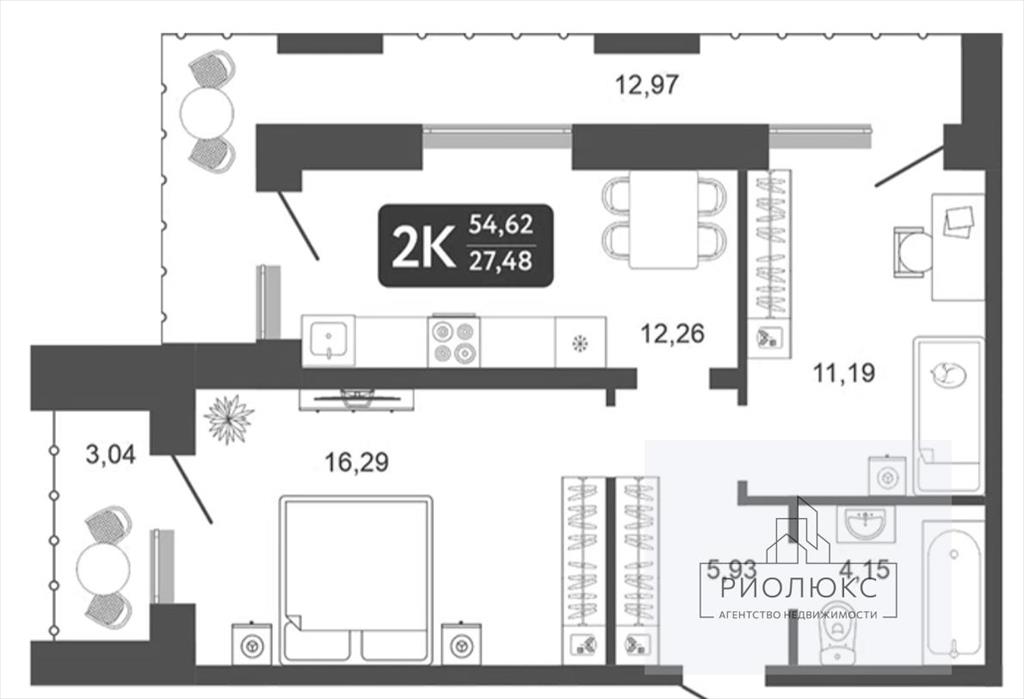
Двухкомнатная квартира 54,62 м2 по ул. за 5900000 руб.

Двухкомнатная квартира по ул. , в Екатеринбурге
Цена 5 900 000 р. (108 019 р./м2)
Подать заявку на ипотеку
Этаж 2/24
Площадь общая 54,62 м2, жилая 16,29 м2, кухни 12,26 м2
Кол-во комнат Двухкомнатная
id:48263. Представляем вашему вниманию уютную квартиру в современном жилом комплексе. Это светлая двухкомнатная квартира в монолитно-кирпичном доме, которая станет воплощением вашей мечты о новом доме.<br /> <br /> Просторные помещения общей площадью 54.62 м&sup2; грамотно распределены: уютная жилая зона площадью 16.29 м&sup2; и изолированные комнаты создают ощущение приватности и комфорта для всех жильцов. Особой гордостью этой планировки является большая кухня площадью 12.26 м&sup2; &mdash; настоящее сердце будущего дома, где можно собрать семью за ужином или насладиться утренним кофе.<br /> <br /> Квартира расположена на втором этаже 24-этажного здания, что обеспечивает прекрасный вид и ощущение простора. Новый монолитно-кирпичный дом гарантирует высокий уровень шумоизоляции, надежность и долговечность конструкции.<br /> <br /> &nbsp;
Описание дома
Этажность дома 24
Объявление № 23895156
Дата подачи:
5 февраля 2026 г. 5:41
Дата обновления:
5 февраля 2026 г. 5:41
Просмотров 9 Хотите продать быстрее?

Продавец
Агентство недвижимости:
Таисья Морозова
email: MorozovaT.riolux@gmail.co m
Показать номер телефона
Пожаловаться
Комментарии:
Добавить