Двухкомнатная квартира 67,10 м2 по ул. ул. Восточная 8 за 8370000 руб.

Двухкомнатная квартира по ул. ул. Восточная, 8 в Екатеринбурге
Цена 8 370 000 р. (124 739 р./м2)
Подать заявку на ипотеку
Адрес ул. Восточная, 8
Этаж 8/9
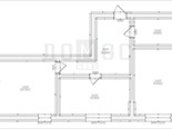
Площадь общая 67,1 м2, жилая 31 м2, кухни 17 м2
Кол-во комнат Двухкомнатная
Просторная, светлая квартира в новом жилом комплексе Victory Park (комфорт-класс). 2 раздельные комнаты и кухня-гостиная. Вид из окон на парк Победы. Закрытая территория двора, жилой комплекс имеет единственный подземный паркинг в городе. Рядом вся необходимая инфраструктура. Отсутствует любые обременения, собственник совершеннолетний (не пенсионер). ID объекта в нашей базе: 12970
Описание дома
Этажность дома 9
Объявление № 23809457
Дата подачи:
18 декабря 2025 г. 6:49
Дата обновления:
20 марта 2026 г. 8:04
Просмотров 19 Хотите продать быстрее?

Продавец
Агентство недвижимости:
Ираида Викторовна
email: kredit2502@mail.ru
Показать номер телефона
Пожаловаться
Комментарии:
Добавить