Трехкомнатная квартира 64,20 м2 по ул. ул. Трубников 48б за 6250000 руб.

Трехкомнатная квартира по ул. ул. Трубников, 48б в Екатеринбурге
Цена 6 250 000 р. (97 352 р./м2)
Подать заявку на ипотеку
Адрес ул. Трубников, 48б
Этаж 4/5
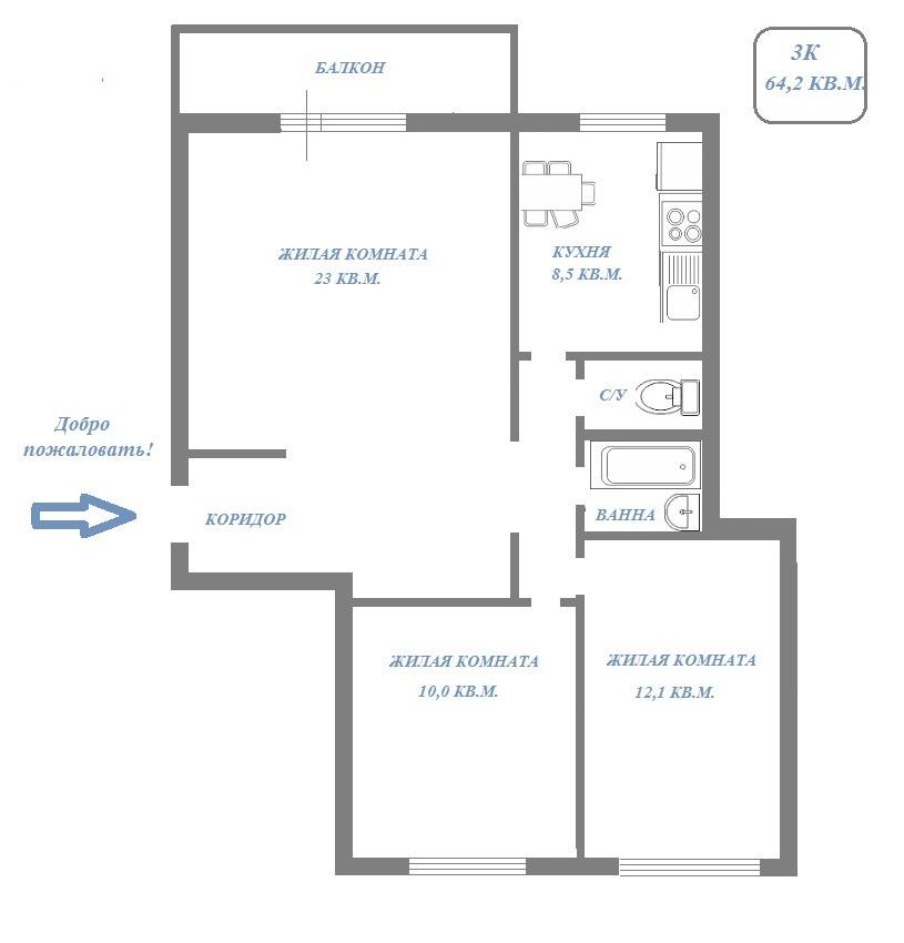
Площадь общая 64,2 м2, жилая 44,4 м2, кухни 8,5 м2
Кол-во комнат Трехкомнатная
<b>В ПРОДАЖЕ ТРЕХКОМНАТНАЯ КВАРТИРА В РАЙОНЕ КОРАБЕЛЬНОЙ РОЩИ.</b><br /><br />- Дом после капитального ремонта, поменяны трубы ХВС и ГВС, отремонтирован подъезд;<br /><br />- Квартира в отличном состоянии, продается с мебелью и техникой;<br /><br />- Большая придомовая территория на которой расположены: парковочные места для автомобилей, детские площадки разделенные по возрастам, закрытая футбольная площадка;<br /><br />- Удобное месторасположение дома, рядом все необходимые для комфортного проживания и экономии времени социальные и муниципальные объекты инфраструктуры: детские сады № 38, № 41, № 44, № 45, Средние общеобразовательные школы № 2, № 9, № 10, Первоуральский политехникум, Городская библиотека № 6, детская школа искусств, Отдел ЗАГС, Парк культуры и отдыха Корабельная роща, в шаговой доступности, остановки общественного транспорта, магазины, аптеки...;<br /><br />- Квартира в чистой продаже, без долгов и обременения. ID объекта в нашей базе: 3605
Описание дома
Этажность дома 5
Объявление № 23717631
Дата подачи:
2 декабря 2025 г. 7:08
Дата обновления:
5 декабря 2025 г. 9:33
Просмотров 2 Хотите продать быстрее?

Продавец
Агентство недвижимости:
Татьяна Николаевна
email: gritsaytn@list.ru
Показать номер телефона
Пожаловаться
Комментарии:
Добавить