Трехкомнатная квартира 118,50 м2 по ул. д.1 за 12340000 руб.

Трехкомнатная квартира по ул. д.1, в Екатеринбурге
Цена 12 340 000 р. (104 135 р./м2)
Подать заявку на ипотеку
Адрес д.1
Этаж 7/7
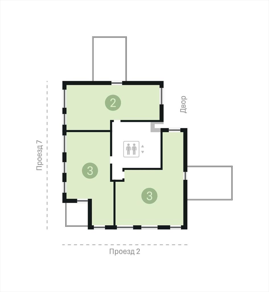
Площадь общая 118,5 м2, жилая 41,2 м2, кухни 19,4 м2
Кол-во комнат Трехкомнатная
Продаётся с кладовой. Квартира с кухней-гостиной и тремя спальнями в Бруснике в Академическом. Особенности планировки: окно в коридоре, без отделки, вид во двор, разнесённые спальни, терраса на крыше. Объявление от застройщика. Покупка квартиры защищена банком. Трехкомнатная квартира в проекте Брусники в «Академическом» - это квартира с объединенной кухней-гостиной, тремя спальнями и ванной комнатой. Купить квартиру выгодно напрямую от застройщика Брусника. Отделка квартиры в проекте Брусники в «Академическом» На сдаче в трехкомнатной квартире выполнена отделка под чистовую: - Стены выровнены и оштукатурены, на полу - цементно-песчаная стяжка с минеральным утеплителем. - Проведена разводка электрики, установлена сантехника (в одном из санузлов) , розетки, выключатели, радиаторы отопления с терморегуляторами и приборы учета, показания которых благодаря системе телеметрии автоматически передаются в управляющую компанию. - На входе - стальная сейф-дверь, обшитая МДФ-панелями. - Окна пластиковые. Расположение проекта Брусники в «Академическом» Новый проекте Брусники расположен в Академическом районе. С центром его связывают две магистральные улицы - Вильгельма де Геннина и Амундсена. Рядом со строящимся кварталом появятся две школы, рассчитанные на 1700 мест, и шесть детских садов. На первом этаже дома спроектированы коммерческие помещения, чтобы продуктовые магазины, кофейни и другие полезные сервисы были в шаговой доступности. Купить квартиру в Бруснике Купить трехкомнатную квартиру можно с помощью программ покупки от застройщика Брусника: - ипотека по эксклюзивной ставке с помощью в получении положительного кредитного решения через сервис ипотечный брокер; - квартиры в рассрочку без процентов от застройщика Брусника; - обмен квартиры на новую. Получить одобрение ипотеки или рассрочку, а также осуществить обмен квартир можно онлайн. Запишитесь на онлайн презентацию по телефону или на сайте. № квартиры в нашей базе: АКД2-ГП2-5-5.7. 1.
Описание дома
Этажность дома 7
Объявление № 22375736
Дата подачи:
28 мая 2025 г. 4:12
Дата обновления:
28 мая 2025 г. 2:02
Просмотров 36 Хотите продать быстрее?

Продавец
Отдел продаж
Показать номер телефона
Пожаловаться
Комментарии:
Добавить