Трехкомнатная квартира 87,20 м2 по ул. Таватуйская 20 за 10180000 руб.

Трехкомнатная квартира по ул. Таватуйская, 20 в Екатеринбурге
Цена 10 180 000 р. (116 743 р./м2)
Подать заявку на ипотеку
Адрес Таватуйская, 20
Этаж 6/9
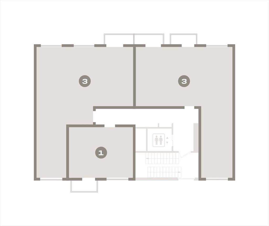
Площадь общая 87,2 м2, жилая 35 м2, кухни 18,7 м2
Кол-во комнат Трехкомнатная
Продаётся с кладовой. Квартира с кухней-гостиной и тремя спальнями в квартале «Депо». Особенности планировки: окна на две стороны, второй санузел, вид во двор, разнесённые спальни, предчистовая отделка, балкон. № квартиры в нашей базе: ДЕП04-Ж3.6. 2.
Описание дома
Этажность дома 9
Объявление № 22303445
Дата подачи:
22 мая 2025 г. 6:49
Дата обновления:
22 мая 2025 г. 6:00
Просмотров 41 Хотите продать быстрее?

Продавец
Отдел продаж
Показать номер телефона
Пожаловаться
Комментарии:
Добавить