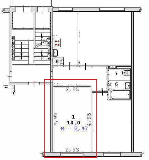
Комната 14,00 м2 по ул. ул. Олега Кошевого 32 за 850000 руб.

Цена 850 000 р.
Район Уктус
Адрес ул. Олега Кошевого, 32
Этаж 1/5
Этажность дома 5
Площадь 14 м2
Продам, кол-во комнат 1
Общее кол-во комнат 3
<p>Продается уютная комната 14 кв.м. в 3-комнатной квартире.</p> <p>Район с хорошо развитой инфраструктурой и транспортной развязкой.</p> <p>Рядом: школа, детские сады № 47, 454, Поликлиника № 3, Екатеринбургский политехникум, магазины, супермаркеты, спортивно-развлекательный комплекс "Уктус", лесопарк Уктусские горы,</p> <p>Документы готовы. <br />Один взрослый собственник. <br /><br />Звоните!</p> ID объекта в нашей базе: 824
Объявление № 23809476
Дата подачи:
18 декабря 2025 г. 6:52
Дата обновления:
18 декабря 2025 г. 6:52
Просмотров 3 Хотите продать быстрее?

Продавец
Агентство недвижимости:
Николай
email: ooo_ekb@mail.ru
Показать номер телефона
Пожаловаться
Комментарии:
Добавить