Торговые помещения площадью 155,00 м2, по цене 29990000 по адресу ул. Уральских рабочих - 10

Цена 29 990 000 р.
Вид недвижимости Торговые помещения
Район Уралмаш
Адрес ул. Уральских рабочих, 10
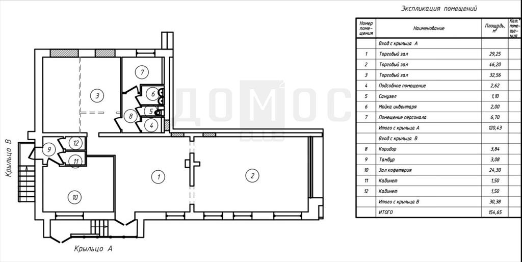
Площадь помещения 155 м2
- В продаже коммерческое помещение площадью 155 кв.м. расположенное в густонаселенном районе в месте с высокой проходимостью.<br />- Разделено на 2 части, каждое имеет отдельный вход с улицы Уральских рабочих, при необходимости можно объединить в единое целое с двумя входами.<br />- Первое снимает ОЗОН, Второе Красное и Белое.<br />- 1 взрослый собственник, быстрый выход на сделку. ID объекта в нашей базе: 14159
Объявление № 23943442
Дата подачи:
3 марта 2026 г. 5:35
Дата обновления:
2 марта 2026 г. 14:02
Просмотров 22 Хотите продать быстрее?

Продавец
Агентство недвижимости:
Денис Владимирович
email: denisvb78den@yandex.ru
Показать номер телефона
Пожаловаться
Комментарии:
Добавить