Земельные участки площадью м2, по цене 10800000 по адресу -

Цена 10 800 000 р.
Вид недвижимости Земельные участки
Район Сулим.торфяник
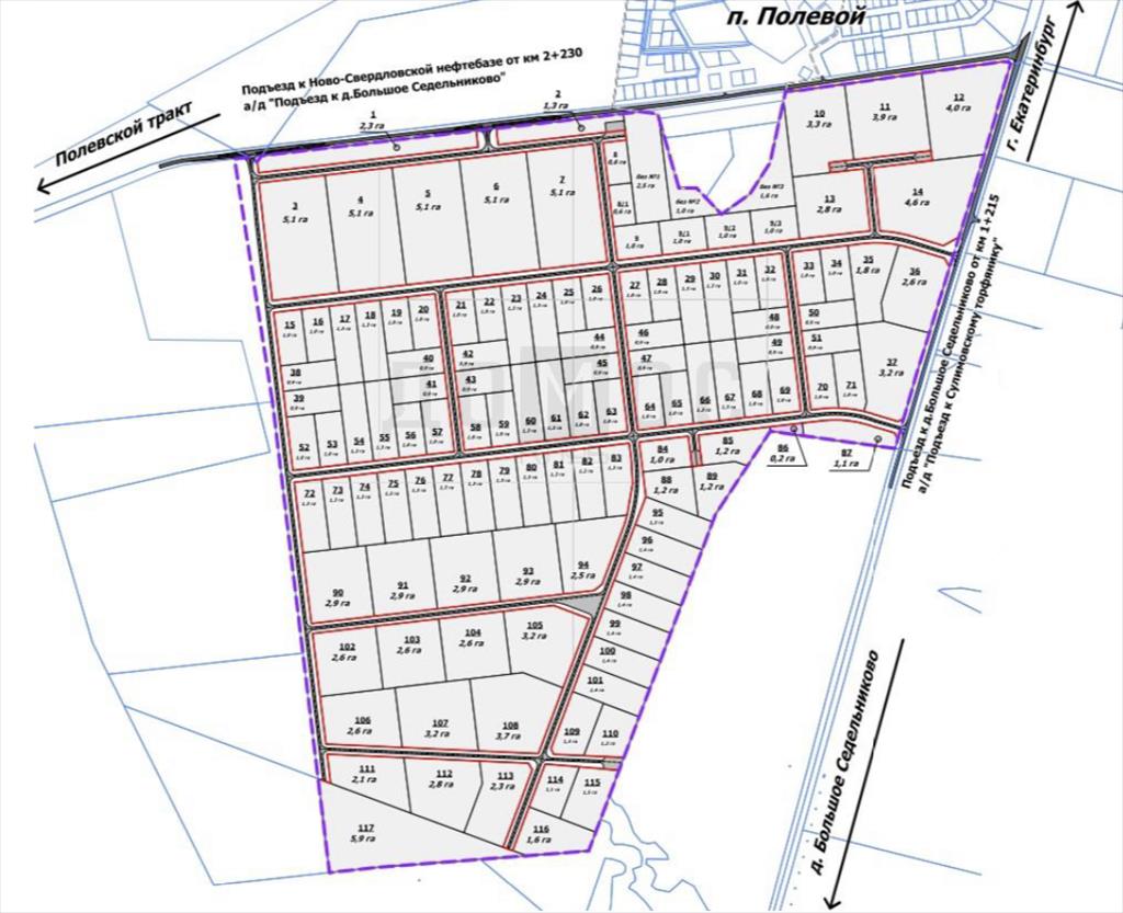
Последние участки 0,6 га в индустриальном парке &mdash; уникальная инвестиционная возможность!<br /><br />Продаются последние земельные участки площадью 60 соток в современном индустриальном парке рядом с Екатеринбургом. Это крайне выгодное вложение: стоимость земли сейчас очень привлекательна, а её цена стабильно растёт благодаря удачному расположению и развитию района.<br /><br />Идеально подходит для организации автосервиса, малого производства, склада, техцентра или логистического комплекса.<br /><br />📍 Преимущества расположения<br /><br />- 3 км до ЕКАД &mdash; быстрый выезд на федеральные трассы.<br />- 12 км до центра Екатеринбурга &mdash; удобно для сотрудников и клиентов.<br />- 8 км до аэропорта Кольцово &mdash; оптимально для бизнеса с авиаперевозками.<br />- Выезды на Челябинский и Полевской тракты &mdash; отличная транспортная доступность.<br /><br />🚛 Транспорт и подъезд<br /><br />- Широкие подъездные пути (25&ndash;30 м) &mdash; подходят для фур и большегрузного транспорта.<br />- Асфальтированный и грунтовый подъезд &mdash; круглогодичный доступ.<br /><br />⚡ Коммуникации<br /><br />- Электричество подведено к территории парка.<br />- Получены технические условия (ТУ) на подключение участка.<br />- Ведётся проектирование центральной ливневой канализации.<br /><br />🏭 Возможности использования<br /><br />- Производственные цеха (в том числе пищевые, фармацевтические, лёгкая промышленность).<br />- Складские и логистические комплексы.<br />- Автосервис, техцентр, автомойка.<br />- Сельхозпереработка и хранение.<br />- Торгово-оптовая база.<br /><br />💼 Для кого подойдёт<br /><br />- Для бизнеса: запуск производства или склада рядом с Екатеринбургом.<br />- Для инвестиций: индустриальная земля вблизи ЕКАД стабильно дорожает. Сейчас &mdash; самая выгодная цена!<br /><br />📑 Документы<br /><br />- Чистое право собственности.<br />- Быстрый выход на сделку.<br /><br />Не упустите шанс приобрести последний участок по привлекательной цене! Звоните или пишите в сообщения Авито для получения подробной информации и организации показа ID объекта в нашей базе: 14381
Объявление № 23959209
Дата подачи:
13 марта 2026 г. 5:34
Дата обновления:
12 марта 2026 г. 17:27
Просмотров 27 Хотите продать быстрее?

Продавец
Агентство недвижимости:
Петр Викторович
email: Karpechenkov@inbox.ru
Показать номер телефона
Пожаловаться
Комментарии:
Добавить