Офисы площадью 140,40 м2, по цене 21500000 по адресу ул. Якова Свердлова - 22

Цена 21 500 000 р.
Вид недвижимости Офисы
Район Центр
Адрес ул. Якова Свердлова, 22
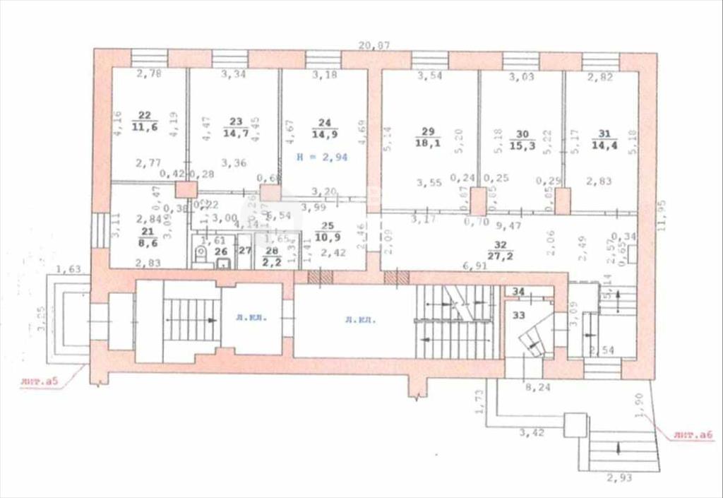
Площадь помещения 140,4 м2
<p>Хотите получать стабильный пассивный доход без хлопот? Тогда обратите внимание на этот объект!</p> <p>Продается коммерческое помещение общей площадью 140,4 кв.м., с базовой офисной отделкой в самом центре города в кирпичном доме с высокими потолками. </p> <p>Помещение кабинетного типа, расположено на первом этаже с отдельной входной группой, которая выходит на оживленную улицу с высоким пешеходным трафиком.</p> <p> Хорошая визуальная доступность фасада.</p> <p>Остановка транспорта буквально в 40 м от входа, до метро Динамо 5 минут пешком, что обеспечивает комфортный доступ сотрудникам и клиентам.</p> <p>Постоянные арендаторы, гарантирующие регулярный доход. В настоящее время 100% площадей сданы в аренду, что обеспечит доход с первого дня.</p> <p>Высокая ликвидность, благодаря постоянному спросу на коммерческие площади в данном районе.</p> <p>Это идеальный вариант для тех, кто ищет надежный источник дохода и ценит стабильность своего бизнеса. Здесь ваши инвестиции будут защищены надежностью постоянных арендаторов и привлекательностью местоположения.</p> <p>Звоните, чтобы узнать детали и договориться о просмотре!</p> ID объекта в нашей базе: 11757
Объявление № 23264058
Дата подачи:
3 октября 2025 г. 0:10
Дата обновления:
2 октября 2025 г. 6:00
Просмотров 12 Хотите продать быстрее?

Продавец
Агентство недвижимости:
Екатерина Николаевна
email: zyryanova@new-orientir.ru
Показать номер телефона
Пожаловаться
Комментарии:
Добавить