Нежилые свободного назначения площадью 246,00 м2, по цене 25000000 по адресу ул. Краснолесья - 21

Цена 25 000 000 р.
Вид недвижимости Нежилые свободного назначения
Район Краснолесье
Адрес ул. Краснолесья, 21
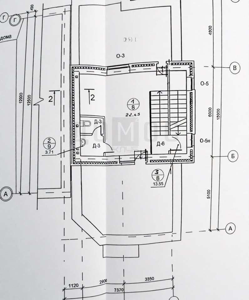
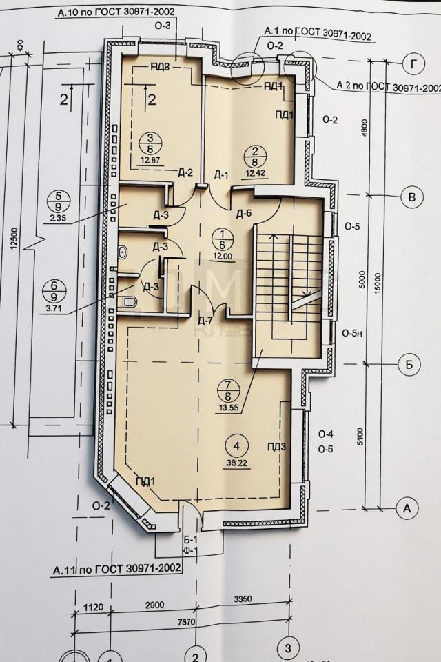
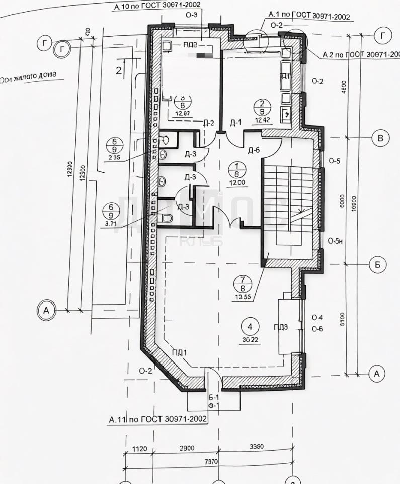
Площадь помещения 246 м2
<p><b>Эксклюзивное предложение: Коммерческое здание полного цикла &ndash; 4 этажа, 325 м&sup2;, кирпич</b></p> <p><b> </b></p> <p><b>На продажу выставлено отдельно стоящее 4-этажное здание из кирпича. Объект идеально подходит для бизнеса любого формата &ndash; от офиса до производства. Предлагаем стать владельцем полного архитектурного объема без соседей.</b></p> <p><b> </b></p> <p><b>Характерист ики:</b></p> <p><b> </b></p> <p><b>&middot ; Общая площадь: 325 м&sup2; (единое здание, 4 этажа).</b></p> <p><b>& ;middot; Этажность: 4 этажа.</b></p> <p><b>& middot; Материал стен: кирпич (высокая тепло- и шумоизоляция).</b></p> <p><b& gt;&middot; Коммуникации: Все центральные сети подключены и функционируют на весь объем здания.</b></p> <p><b> </b></p> <p><b>Преимуществ а для бизнеса:</b></p> <p><b> </b></p> <p><b>&middot ; Кирпичные стены &ndash; долговечность и презентабельный внешний вид.</b></p> <p><b>&mi ddot; Целостность объекта: Возможность занять все этажи одним арендатором или бизнесом.</b></p> <p><b> </b></p> <p><b>Условия сделки и юридический статус:</b></p> <p><b>Объе кт предлагается к покупке единым лотом, но имеет двух собственников. В связи с этим предусмотрен прозрачный и удобный механизм расчетов:</b></p> <p><b> </b></p> <p><b>1. Основная часть (ООО): 246 м&sup2; принадлежат юридическому лицу. Документы полностью готовы к сделке, обременений нет. Цена, указанная в объявлении (25,5 млн руб.), действительна именно за этот объем права.</b></p> <p><b>2. Дополнительная площадь (Физ. лицо): 79 м&sup2; (2-й этаж) находятся в частной собственности.</b></p> <p><b& gt; </b></p> <p><b>Порядок приобретения всего здания (325 м&sup2;):</b></p> <p><b&g t;Покупатель заключает договор с ООО на сумму 25,5 млн руб. (получает 246 м&sup2; и контроль над зданием). Оставшиеся 79 м&sup2; выкупаются у физического лица отдельным соглашением с соответствующей доплатой. Мы оказываем полное содействие в проведении единой комплексной сделки так, чтобы вы стали владельцем всего здания целиком.</b></p> <p><b> </b></p> <p><b>Актуально до 08.06.26</b></p> ID объекта в нашей базе: 15009
Объявление № 24006759
Дата подачи:
10 апреля 2026 г. 5:37
Дата обновления:
9 апреля 2026 г. 6:00
Просмотров 25 Хотите продать быстрее?

Продавец
Агентство недвижимости:
Специалист по недвижимости
email: chukavin_k.a@mail.ru
Показать номер телефона
Пожаловаться
Комментарии:
Добавить