Нежилые свободного назначения площадью 252,20 м2, по цене 4990000 по адресу ул. Красноармейская - 120/1

Цена 4 990 000 р.
Вид недвижимости Нежилые свободного назначения
Адрес ул. Красноармейская, 120/1
Площадь помещения 252,2 м2
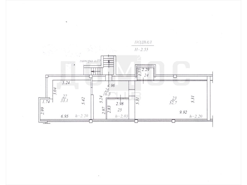
<p>Продаю цокольное помещение площадью 252,2 кв. м. Возможно разделение на два помещения с отдельными входами и разными кадастровыми номерами: помещение 178,6 кв. м (кадастровый номер 66:33:0101012:2106) и помещение 73,6 кв. м (кадастровый номер 66:33:0101012:2107).<br /><br />Удачное расположение для бизнеса, удобная транспортная развязка. Рядом находятся:<br />- Арамильский завод погонажных изделий,<br />- Арамильский завод передовых технологий,<br />- Арамильский завод теплоизоляции,<br />- Арамильский завод пластмасс,<br />- &laquo;Урал Кожа&raquo; и другие предприятия.<br /><br />Помещение светлое, идеально подходит для услуг массажа, парикмахерской, швейной мастерской, офиса или пункта выдачи заказов. Доступ круглосуточно. Есть возможность приобрести и объединить смежные помещения.</p> <p></p> ID объекта в нашей базе: 12308
Объявление № 23570287
Дата подачи:
8 ноября 2025 г. 6:48
Дата обновления:
8 ноября 2025 г. 6:00
Просмотров 20 Хотите продать быстрее?

Продавец
Агентство недвижимости:
Алексей Саматович
email: zagirov66@mail.ru
Показать номер телефона
Пожаловаться
Комментарии:
Добавить