Нежилые свободного назначения площадью 336,10 м2, по цене 15450000 по адресу ул. Ленина - 2а

Цена 15 450 000 р.
Вид недвижимости Нежилые свободного назначения
Адрес ул. Ленина, 2а
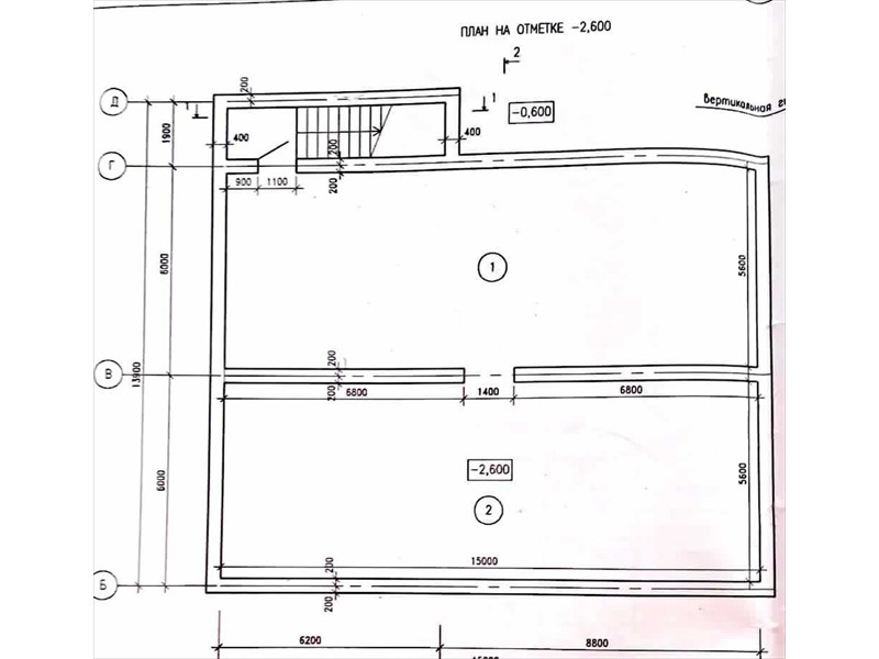
Площадь помещения 336,1 м2
Продаётся двухэтажное коммерческое здание на участке 6 соток в собственности. <br /> <br /> Объект в долгосрочной аренде,обладает потенциалом для дальнейшей модернизации. Принадлежит одному собственнику, без обременений — готов к быстрой передаче прав. <br /><br /> Конструктивно предусмотрена возможность надстройки третьего этажа без значительных работ по фундаменту; крыша оснащена съёмными элементами для удобства ремонта и реконструкции. Фундамент здания выполнен с использованием дорожных плит и блоков ФБС, что гарантирует высокую несущую способность и устойчивость конструкции. Стены здания возведены из газобетонных блоков с дополнительным слоем утеплителя, что обеспечивает энергоэффективность и комфортные условия эксплуатации. <br /> Электроснабжение объекта осуществляется от централизованной сети с мощностью 45 кВт, что позволяет удовлетворить потребности как текущих, так и потенциальных арендаторов. Водоснабжение осуществляется посредством скважины, что является надежным и экономически выгодным решением в условиях ограниченного доступа к централизованным источникам воды. Канализация оборудована септической системой, обеспечивающей эффективную очистку и утилизацию сточных вод.<br /><br /> Локация с высокой проходимостью и удобным транспортным сообщением, подходит для офисов, торговли, службы доставки, медцентра или других коммерческих проектов. Возможна покупка в ипотеку. ID объекта в нашей базе: 4678
Объявление № 23263479
Дата подачи:
2 октября 2025 г. 23:53
Дата обновления:
2 октября 2025 г. 6:00
Просмотров 40 Хотите продать быстрее?

Продавец
Агентство недвижимости:
Мария Сергеевна
email: marusy86_86@mail.ru
Показать номер телефона
Пожаловаться
Комментарии:
Добавить