Дом по адресу Заречный, кв-л. Ильинский ключ, за 11500000 р.

Адрес Заречный, кв-л. Ильинский ключ
Цена 11 500 000 р.
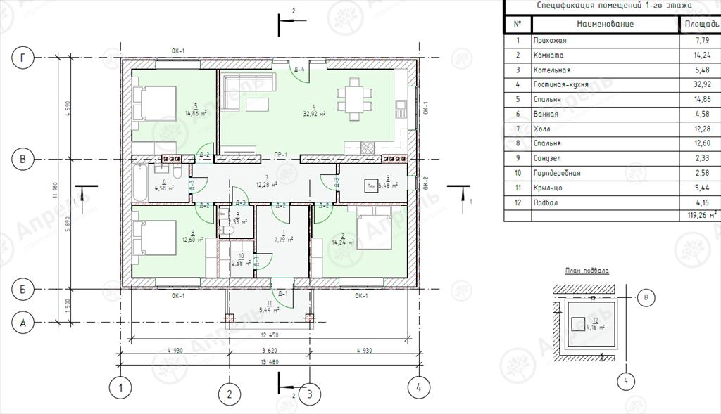
Площадь дома 114 м2, участка 8 м2
Кол-во комнат 3
<p>Продам Дом "Эмлер" из газобетона с облицовкой фасада кирпичом.</p> <p>Площадь дома 120 м2, жилая 114 кв.м.</p> <p><b>Фундамент: </b>свайно-ростверковый фундамент. Сваи &ndash; буронабивные диаметром 300мм, глубиной 2.5м.п., ниже уровня промерзания грунтов в нашем регионе (1.8м), а значит сваи защищены от свойства пучинистости грунтов.</p> <p><b>Основанием полов</b> является железобетонная плита толщиной 150мм, опирающаяся на ростверк. Утепление ростверка (цоколя) выполнено экструдированным пенополистеролом толщиной 50мм в процессе бетонирования.</p> <p><b>Стены коттеджа</b> выполнены из энерго эффективного газоблока толщиной 300мм марки D500, с плотностью 500кг/м3. Между плитой и первым рядом кладки газоблока выполнена гидроизоляция из рулонного гидроизоляционного материала. Каждые три ряда кладки стен, начиная со второго, армируются стальной арматурой диаметром 8мм в две нитки. Верхний ряд несущих стен обвязан монолитным поясом с дополнительным наружным утеплением экструдированным пенополистеролом толщиной 50мм, что защищает пояс от промерзания в зимнее время.</p> <p><b>Перемычки оконных и дверных проемов</b> в несущих стенах представлены стальными уголками 100х100х7мм и смонтированы скрытым монтажом. Такая установка позволяет избежать &laquo;мостиков холода.</p> <p><b>Светопрозрачны е конструкции дома</b> выполнены из ПВХ профиля толщиной 70мм с армированием сталью толщиной 2 мм. Они обладают ступенчатым микропроветриванием, мультифункциональным стеклопакетом. В основе технологии лежит принцип теплового зеркала. С наружной стороны на окнах установлены металлические отливы.</p> <p><b>Уличная дверь установлена с &laquo;терморазрывом&raquo;</b>, что снижает теплопотери через входную группу, защищает дверь от конденсата и наледи, повышает звукоизоляцию и долговечность двери.</p> <p><b>Отопление.</ b></p> <p>Отопление дома представлено водяными теплыми полами, выполненными из труб из шитого полиэтилена, что обеспечивает надежную и эффективную работу по нагреву пола и всего здания в целом. В качестве нагревателя Оборудование в котельной смонтировано таким образом, что при подведении газа к дому, установка газового котла будет простой задачей, все необходимые подводящие трубы уже предусмотрены.</p> <p><b>Холодно е и горячее водоснабжение.</b></p> <p>Водосн абжение здания осуществляется за счет индивидуальной глубинной водяной скважины с дебетом не менее 1.5м3/час. Все подводящие трубопроводы от скважины в здание защищены от промерзания пенополиуретановым утеплителем и греющим кабелем.</p> <p>Горячая вода обеспечивается водонагревателем 80-100 литров. Подача горячей воды в доме предусмотрена с возможностью подключения рециркуляции (при открытии крана сразу (без задержек) бежит горячая вода), при условии установки газового котла.</p> <p><b>Водоотведение.& lt;/b></p> <p>Трубы водоотведения выполнены в подпольном пространстве (под плитой перекрытия) и собираются в водоотводную трубу, соединенную с септиком. Сброс с септика очищенных стоков происходит в дренажный колодец с последующим стоком в дренирующие слои грунтов. Установленный септик позволяет принять залповый сброс от 200л. единоразово.</p> <p><b>Вентиляци я.</b></p> <p>Вентиляция дома &ndash; приточно-вытяжная, естественная. Приточная система представлена клапанами искусственной вентиляции, КИВ 125. Вытяжная система представлена проходными вентиляционными утепленными кровельными выходами (&laquo;грибы&raquo; на кровле).</p> <p><b>Готовность декабрь 2025 года Вы можете наблюдать за ходом строительства Вашего дома мечты в этом объявлении. Закрепляйте в сердечко!</b></p> ID объекта в нашей базе: 3024
Объявление № 23471956
Дата подачи:
23 октября 2025 г. 9:22
Дата обновления:
23 октября 2025 г. 9:22
Просмотров 33 Хотите продать быстрее?

Продавец
Агентство недвижимости:
Ольга Владимировна
email: saychenko@bk.ru
Показать номер телефона
Пожаловаться
Комментарии:
Добавить