Дом по адресу Становая, ул. Берилловая, за 8500000 р.

Адрес Становая, ул. Берилловая, 8
Цена 8 500 000 р.
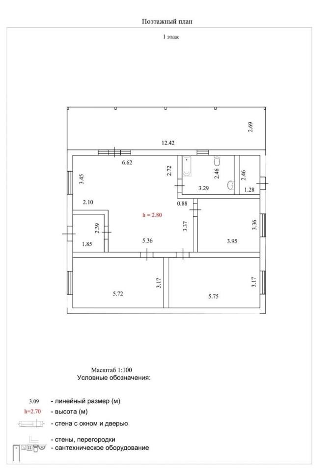
Площадь дома 105 м2, участка 10 м2
Кол-во комнат 4
<p>Новые капитальные дома с лесом на участке. Отделка под ключ. Семейная ипотека 6%.</p> <p>• Готовы к продаже три новых капитальных дома в живописном месте поселка Становая (Берёзовский г.о.). Ключевые преимущества:<br />• Свой лес: Участки примыкают к лесу. У одного дома — приватный выход в лес.<br />• Полная готовность: Отделка «под ключ», просторная терраса, готовый забор по периметру.<br />• Надежная конструкция: Дома из твинблока (300мм +50 мм утеплитель) на комбинированном фундаменте (плита + сваи). Высота потолков 2,8 м.<br />• Скважина 56м, переливной септик. <br />• Мягкая кровля (у одного дома — черепица)<br />• Экономичное отопление: Теплые полы. Зимние счета всего 5-6 тыс. руб. в месяц.<br />• Газ у границы: Возможно подключение по программе догазификации.<br />• Выгодная ипотека: Доступна семейная ипотека от 6%.<br />• Детали: Участки: от 10 до 11.8 соток. • Район: Тихая, тупиковая ул. Берриловая.</p> <p>Коммуникации: Современная вентиляция по потолку во всех комнатах. <br />• Цена: 8 500 000 рублей. <br />• Для покупателей: При покупке за наличный расчет — серьезный торг.<br />• Для агентов: Щедрый бонус за приведенного клиента.<br />• Идеальный вариант для жизни на природе в готовом доме для большой семьи.</p> ID объекта в нашей базе: 5184
Объявление № 23879640
Дата подачи:
28 января 2026 г. 5:38
Дата обновления:
28 января 2026 г. 5:38
Просмотров 1 Хотите продать быстрее?

Продавец
Агентство недвижимости:
Екатерина Алексеевна
email: new.stroyka@mail.ru
Показать номер телефона
Пожаловаться
Комментарии:
Добавить