Дом по адресу Сарапулка, ул. Меньшикова, за 9500000 р.

Адрес Сарапулка, ул. Меньшикова, 3
Цена 9 500 000 р.
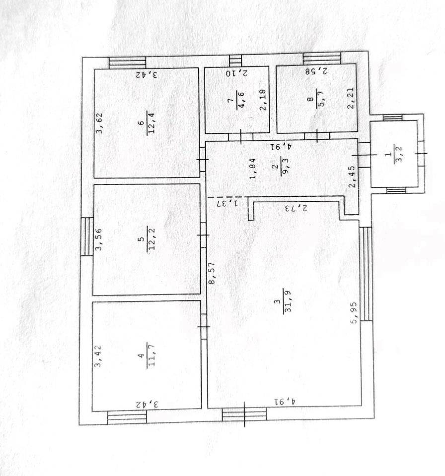
Площадь дома 97 м2, участка 14,16 м2
Кол-во комнат 3
Продается готовый жилой дом от собственника с газом!<br />Площадь 97кв.м. Потолки 3.00 метра<br />идеальная планировка: три изолированные комнаты, просторная кухня - столовая 32кв.м. с шикарным выходом на будущую террасу.<br />Стены - твинблок 400, <br />Утепленная плита, отмостка 1 метр, монолитная плита - арматура 12мм стальная, ж/б армопояс, <br />Мягкая кровля - черепица Технониколь Shinglas.<br />Участок 14,16 соток, земли поселений, назначение - ИЖС, входит в стоимость.<br />Забор по периметру с откатными воротами. Участок выровнен, без перепадов.<br />Отделка под чистовую, возможно оперативно сделать отделку.<br />Газ заведен в дом, Электричество 380В подключено, выделенная мощность 15кВт,<br />Септик (3 по 3 кольца переливом), скважина 60+ метров, заведена в дом, все подключено.<br />Теплые полы, водонагреватель 100л на горячую воду.<br />Низкие коммунальные платежи (зима-максимум 4тр)<br />В пешей доступности школа, магазины, остановка транспорта.<br />✔️<b>Семейная возможна, если у клиента есть ребенок до 6 лет включительно или двое несовершеннолетних до 18 лет! </b>(макс платеж 35000рублей), подходит под сельскую ипотеку. <br /><b>ЗАПИСЫВАЙТЕСЬ НА ПРОСМОТР<br />Готовы построить дом по Вашему проекту!</b> ID объекта в нашей базе: 2021
Объявление № 23914127
Дата подачи:
15 февраля 2026 г. 5:28
Дата обновления:
15 февраля 2026 г. 5:28
Просмотров 21 Хотите продать быстрее?

Продавец
Агентство недвижимости:
Алексей Евгеньевич
email: alloga2019@gmail.com
Показать номер телефона
Пожаловаться
Комментарии:
Добавить