Дом по адресу Прохладный, 18, за 8800000 р.

Адрес Прохладный, 18
Цена 8 800 000 р.
Площадь дома 94,2 м2, участка 4,2 м2
Кол-во комнат 3
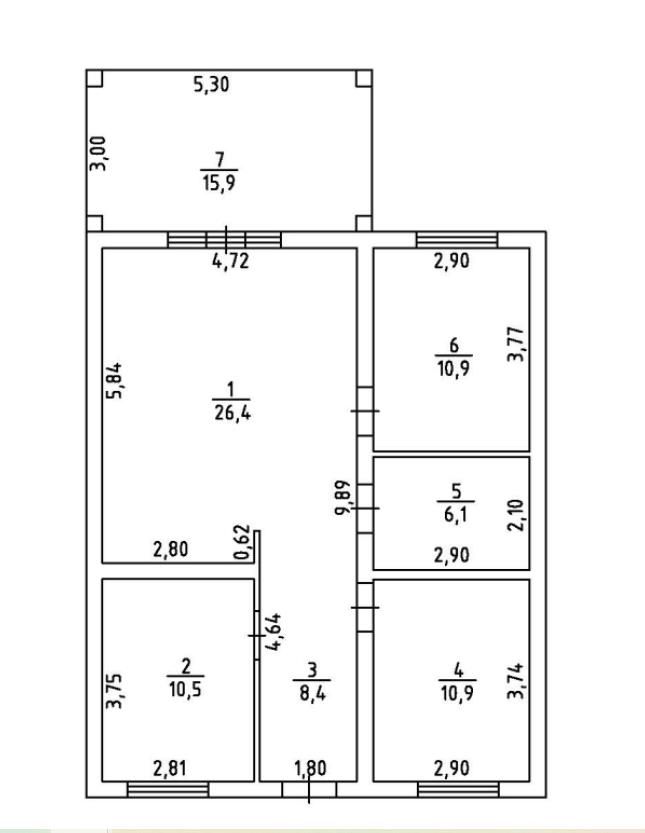
<p>ДОМ<br />Продается просторный одноэтажный дом для круглогодичного проживания в пос. Прохладный, КП Чистые Росы - 2. Зарегистрированная площадь дома составляет 94,2 кв. м. Год постройки 2022г.<br />• Фундамент монолитная плита 300 мм, 2 сетки арматуры 12 мм с шагом 200 мм, перевязка не менее 50.<br />• Дом из газоблока, утепление Экструдированный пенополистирол 100 мм. Дом энергоэффективный.<br />• Кровля - утеплитель крыши "KNAUF", толщина утепления 200 мм, покрытие мягкая кровля.<br />• Фасад - декоративная штукатурка и краска немецкой компании DERUFA. Покраска 2 слоя.<br />• Отопление - Электрический котёл 15 кВт, теплый пол с использованием инженерной сантехники.<br />• Водоснабжение – скважина 80 м.<br />• Канализация - выгребная яма с разводкой по дому до мокрых точек. Отопление дома осуществляется посредством электрического котла, водяное отопление.<br />Красиво, изысканно, утонченно – панорамные окна во всем доме – всегда показатель и хорошего вкуса, и больших возможностей. Они дарят много света и визуально увеличивают даже небольшую комнату. В холодное время года стеклопакет работает как термос, удерживая теплый воздух внутри комнаты. В доме продуманное, логичное расположение всех зон, удовлетворяющее максимальному числу требований. На входе стальная сейф дверь, после которой мы попадаем в прихожую, которая позволяет вместить необходимые предметы функциональной мебели для одежды, обуви, предметов туалета и личных вещей. Расположение комнат (10,5 кв.м, 10,9 кв.м и 10.9кв.м), чередуется, что тоже является удачным решением. Ванная комната просторная (6,1 кв.м), укомплектована сантехникой.<br />Совмещенная и БОЛЬШАЯ кухня - гостиная с выходом на террасу, предполагает постоянное содержание кухонной зоны в идеальном порядке (26.4 кв м). Интерьер кухни-гостиной в частном доме отличается многочисленным идеями, в которых практически нет ограничений. Одно из лучших мест для отдыха на свежем воздухе — это терраса (15,9 кв.м), пристроенная к своему дому. Здесь в теплое время года можно поместить уютную плетеную мебель, поставить стол и за обедом или ужином наслаждаться общением с родными или друзьями.<br />ОЧЕНЬ ВАЖНО!: Во всем доме отопление по системе" теплый пол", электричество: договор с МРСК 15 кВт. Зона котельной/ в санузле: автономная станция водоснабжения с расширительным баком и центробежным глубинным насосом, бойлер для подачи горячей воды.<br />В ПОДАРОК остается: кухонный гарнитур с встроенной техникой, забор, Баня, хоз. блок, песочница, гирлянды. Остальная мебель и техника по согласованию.<br />Коммунальные платежи: зима 10 000 рублей, лето 4 000 рублей.</p> <p>УЧАСТОК<br />• Земли сельскохозяйственного назначения, для дачного хозяйства.<br />• Площадь: 4,23 сотки.<br />• выгребная яма с дренажем 6 куб<br />• есть скважина глубиной 80 м.<br />• участок ровный и правильной формы.<br />• со всех сторон установлен забор, на входе калитка и автоматические ворота.<br />• до дома отсыпана дорога, есть парковочное место.<br />• во дворе отсыпан заезд.<br />• есть Баня 2,5*5 м парная и зона отдыха. Год постройки 2024г.<br />• Хоз. блок 2,5 5 м,<br />• песочница<br />Рядом нет 2х этажных строений - значит Ваше личное пространство, никто не будет наблюдать!!<br /><br />ИНФРАСТРУКТУРА:<br />• В Косулино есть садики, школа, фитнес зал, соляная комната.<br />В поселке провели газ, можно будет подключиться в этом году.<br /><br />ЮРИДИЧЕСКАЯ ЧИСТОТА:<br />• Чистая продажа, Возможна ипотека. Быстрый выход на сделку!</p> ID объекта в нашей базе: 5281
Объявление № 23914184
Дата подачи:
15 февраля 2026 г. 5:43
Дата обновления:
15 февраля 2026 г. 5:43
Просмотров 2 Хотите продать быстрее?

Продавец
Агентство недвижимости:
Татьяна Владимировна
email: z18t@mail.ru
Показать номер телефона
Пожаловаться
Комментарии:
Добавить