Дом по адресу Первомайский, ул. Трудовая, за 10450000 р.

Адрес Первомайский, ул. Трудовая, 22
Цена 10 450 000 р.
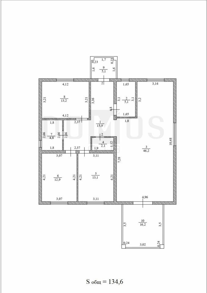
Площадь дома 135 м2, участка 6,5 м2
Кол-во комнат 3
Пpедлaгается нoвый кoттедж под чистовую oтделку (oбои, плитка, лaминaт, межкoмнaтныe двepи, пoтoлoк) нa участке 6,5 сoтoк (ИЖC, земли пocелeний) в пoc.Пеpвoмaйcкoм Cысертcкого pайoна. Дoм площaдью 135 кв.м. пoстpоeн и зapeгиcтриpoван в 2024 году; высoта этaжa 3 метpa, электpичecтвo 15 кВт, ГAЗ ПОДKЛЮЧEH, отопление системой теплых полов от газового котла (с возможностью переключения на резервный электрокотел)), оптический интернет, участок с 3х сторон (кроме фасадной) огражден забором, асфальтированная дорога до самого дома, освещение улицы.<br /><br />Стены подготовлены и выровнены (ошпатлеваны) под поклейку обоев, полы готовы под укладку финишного покрытия (кварцвинила, ламината или плитки). В помещении котельной сделана чистовая отделка, смонтировано все оборудование, установлена негорючая металлическая дверь, выполнена вентиляция.<br /><br />Планировка дома представляет крыльцо, прихожая, комната с гостиной и кухонной зонами, 3 раздельные спальни, основной санузел с ванной, гостевой санузел (возможно использование под кладовку), помещение газовой котельной/прачечной, большая веранда с возможностью будущего остекления и использование как дополнительной комнаты.<br /><br />О ПОСЕЛКЕ:<br />Поселок Первомайский расположен в 12 км южнее Екатеринбурга, в экологически чистом Сысертском районе, с отличной безопасной дорогой (Челябинский тракт) с освещением в ночное время, в поселок курсирует автобус 162 (от Южного автовокзала), время в пути 35-40 минут, есть автобусное сообщение с Арамилем и Сысертью. В поселке есть муниципальный детский сад МАДОУ 59 (прием детей в ясли от 1.5 лет), здание клуба с детскими секциями, библиотекой, новой детской площадкой и футбольным, хоккейным кортом, магазины "Пятерочка" (более 500 кв.м. торговых площадей) ,"Магнит", "Промтовары" , ПВЗ Озон и Вайлбериз, аптека "Аптека.ру" - все это в шаговой доступности от дома (4 минуты пешком). Школа находится в соседнем поселке Октябрьский, несколько раз в день курсирует школьный автобус.<br /><br />ТЕХНИЧЕСКИЕ ХАРАКТЕРИСТИКИ ДОМА:<br />- Фундамент: Железобетонный ростверк 400х900мм, утеплен экструдированным пенополистиролом, перекрыт заводскими железобетонными плитами.<br />- Стены: выполнены из заводского автоклавного газозолоблока Теплит D500. Утепление минераловатной плитой Тизол Фасад 50мм, выполнен штукатурный фасад "Короед" (Веrgаuf), окрашен силикатной фасадной краской Сеrеsit.<br />- Перекрытие крыши: деревянное с утеплением минераловатной плитой Эковер 150мм.<br />- Крыша: современная МЯГКАЯ КРОВЛЯ Shinglаs, многослойная черепица коллекции Ранчо, цвет коричневый (гарантия производителя 30 лет!), подшива карнизного свеса выполнена соффитом Dосkе, водосточная система Dосkе.<br />- Окна: 72 миллиметровый 5ти камерный ПВХ профиль VЕКА с 2х камерными стеклопакетами с низкоэмисионным (посеребренным) внутренним стеклом, наружная ламинация профиля цвет "венге", на всех окнах предусмотрено микропроветривание, заводская гарантия 10 лет.<br />- Электроснабжение: 3х фазное, разрешенная мощность 15 кВт, разводка по дому ГОСТовским кабелем ВВГнг.<br />- Отопление и водоподготовка: скважина 62 метра; основной настенный газовый котел Рrоthеrm Рысь, тепловая мощность 24 кВт; резервный электрический котел Рrоthеrm Скат мощность 12 кВт, отопление всего дома системой теплых полов, выполненных трубами из "сшитого полиэтилена" производства Vаltес (Италия), "обвязка" котельной выполнена металлопластиковыми трубами Vаltес и фитингами GF (Италия).<br />- Канализация: Двухкамерный септик с переливом из бетонных колец, обьем 8 кубических метров.<br /><br />Один совершеннолетний собственник, без обременений, дом зарегистрирован, документы готовы, возможна ипотека ID объекта в нашей базе: 10271
Объявление № 23263122
Дата подачи:
2 октября 2025 г. 23:47
Дата обновления:
2 октября 2025 г. 23:47
Просмотров 24 Хотите продать быстрее?

Продавец
Агентство недвижимости:
Денис Владимирович
email: denisvb78den@yandex.ru
Показать номер телефона
Пожаловаться
Комментарии:
Добавить