Дом по адресу Грязновское, ул. Ленина, за 5000000 р.

Адрес Грязновское, ул. Ленина, 100
Цена 5 000 000 р.
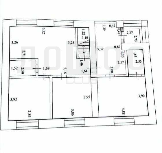
Площадь дома 139 м2, участка 33 м2
Кол-во комнат 4
Предлагаем к продаже прекрасный загородный кирпичный дом общей площадью 139 квадратных метров с продуманным планировочным решением.<br /><br />Особое внимание заслуживает высокое качество строительства и современные инженерные системы. Предчистовая отделка даёт возможность оформить интерьер согласно индивидуальным предпочтениям владельца.<br /><br />Особенности конструкции:<br /><br />&mdash; Наружные стены возведены из надёжного кирпича толщиной 85 сантиметров;<br /><br />&mdash; Перегородки внутри здания сделаны из высококачественного газобетонного материала.<br /><br />Планировка включает:<br /><br />&mdash; Три просторные спальни, одна из которых мастер-спальня;<br /><br />&mdash; Просторную кухню-гостиную;<br /><br />&mdash; Два санузла, один из которых уже оборудован и готов к эксплуатации.<br /><br />Окна с увеличенным проемом оснащены трёхслойными стеклопакетами, благодаря которым помещения хорошо освещаются естественным светом и отлично удерживают тепло в холодное время года.<br /><br />Дополнительные удобства создает благоустроенный теплый и сухой подвальный этаж площадью около 20 кв.м, идеально подходящий для обустройства подсобного помещения, например постирочную.<br /><br />Комфорт и безопасность обеспечиваются современной системой теплоснабжения, включающей двухконтурный электрический газовый котёл и систему тёплого пола, равномерно распределяющую тепло по всей площади дома, включая подвал.<br /><br />Автономная артезианская скважина глубиной 37 метров гарантирует круглогодичное снабжение качественной питьевой водой.<br /><br />Фундамент из природного бута служит гарантией долговечности, прочности и экологической чистоты строения, защищая здание от грунтовых вод и повышенной влажности.<br /><br />Район обладает развитой инфраструктурой: поблизости расположены образовательные учреждения, медицинские организации, торговые точки, культурные объекты и другие необходимые сервисы, способствующие высокому уровню комфортного проживания.<br /><br />Территория земельного надела достаточно велика, позволяя воплотить любой проект ландшафтного дизайна и насладиться живописными пейзажами окружающего ландшафта. Владельцы сада оценят наличие фруктовых деревьев и ягодных кустов: яблони, вишню, малину, иргу.<br /><br />Удобная транспортная доступность открывает быстрый доступ к Екатеринбургу и ближайшим населённым пунктам благодаря недавно построенным дорогам и развязкам.<br /><br />Это жилье позволит вам сформировать собственное уникальное жизненное пространство и ощутить гармонию комфортной городской жизни вдали от шума мегаполиса. Сделайте первый шаг навстречу своему будущему жилищу, звоните прямо сейчас и убедитесь сами в преимуществах приобретения именно этого коттеджа! ID объекта в нашей базе: 13485
Объявление № 23887554
Дата подачи:
1 февраля 2026 г. 5:59
Дата обновления:
1 февраля 2026 г. 5:59
Просмотров 27 Хотите продать быстрее?

Продавец
Агентство недвижимости:
Елена Андреевна
email: davydova_novosel66@inbox. ru
Показать номер телефона
Пожаловаться
Комментарии:
Добавить