Дом по адресу Екатеринбург, ул. Уткинская, за 75000000 р.

Адрес Екатеринбург, ул. Уткинская, 71
Цена 75 000 000 р.
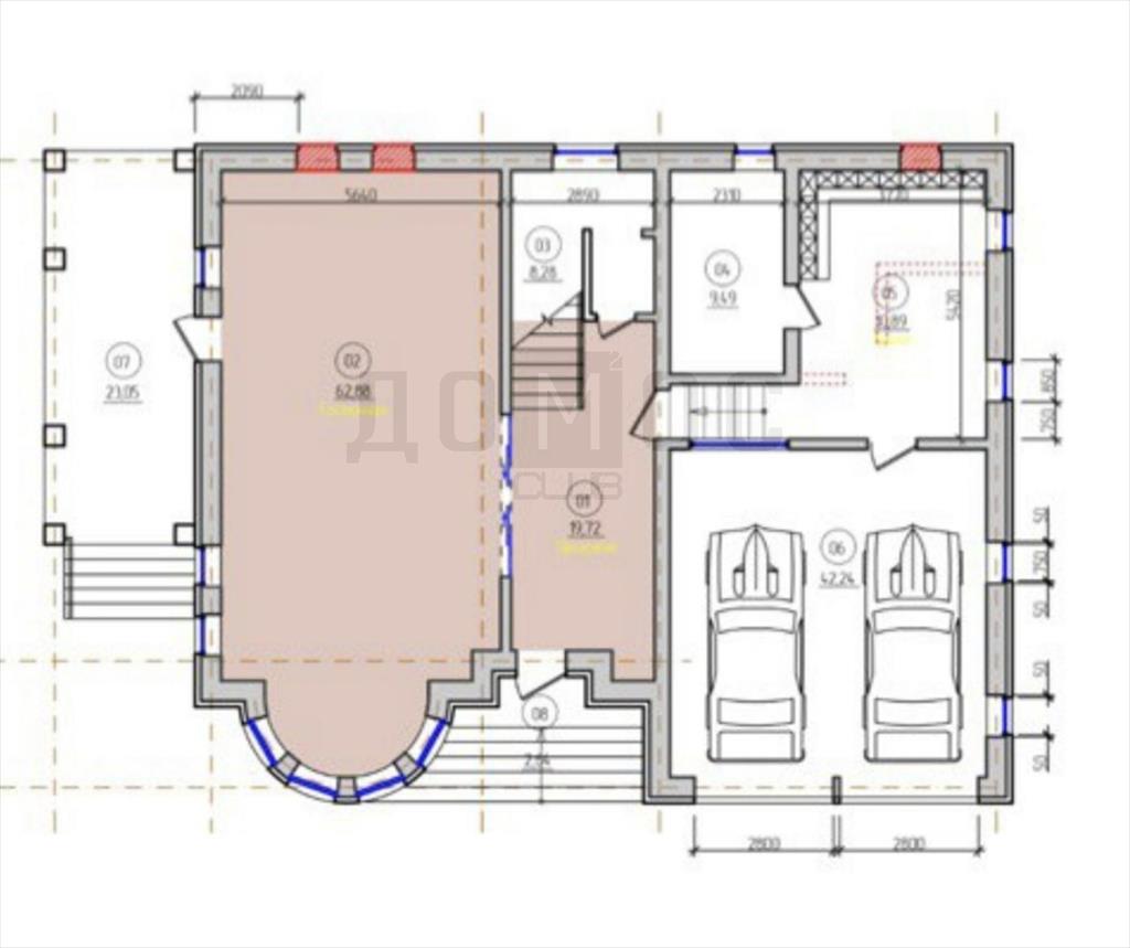
Площадь дома 352,6 м2, участка 10 м2
Кол-во комнат 5
<b><br />Продается новый двухэтажный дом 2025 года в закрытом охраняемом поселке</b><br /><br /><b>Адрес: улица Уткинская, 71 (закрытый поселок &laquo;Уткинские Рощи&raquo; всего на 18 домовладений).</b><br /><br />Общая площадь дома: 352,6 кв.м. <br /><br /><b>Ключевое предложение:</b> Идеальный, теплый, светлый дом &laquo;под ключ&raquo; для большой семьи. Современный дизайнерский ремонт. Заезжай и живи в своем новом пространстве для счастья.<br /><br /><b>О Доме:</b> Современность, комфорт и свет<br /><br />Это не просто дом, это дом вашей мечты, только что построенный и ждущий своих первых хозяев. Практически никто не жил, все в состоянии абсолютной новизны.<br /><br />&middot; Стиль и ремонт: Выполнен по индивидуальному дизайн-проекту с использованием качественных материалов. Продуманная эстетика, гармоничные цвета, современная отделка. Дом наполнен светом благодаря грамотному расположению и большим окнам.<br />&middot; Планировка для большой семьи:<br />&middot; 1 этаж: Просторная гостиная-столовая, интегрированная с кухней, выходит на уютную веранду &mdash; идеально для семейных вечеров. Котельная с новым оборудованием, гардеробная, санузел, теплый гараж на 2 автомобиля.<br />&middot; 2 этаж: Пространство для уединения и отдыха. 3 отдельные спальни, светлый кабинет. Роскошная родительская мастер-спальня с собственной ванной комнатой и большой гардеробной.<br /><br /><b>О Поселке:</b> Безопасность, тишина и природа<br /><br />Вы покупаете не только дом, но и образ жизни.<br /><br />&middot; Закрытая охраняемая территория. Всего 18 домов &mdash; это камерная, приватная атмосфера, где все друг друга знают. Круглосуточная безопасность для вас и ваших детей.<br />&middot; Экология и отдых: Прямое соседство с лесопарковой зоной. Ваша собственная &laquo;зеленая рекреация&raquo; для прогулок, пробежек, пикников и зимних забав.<br />&middot; Развитая инфраструктура в шаговой доступности: В пешей доступности находятся школа, детский сад и магазины. Вам не нужно думать о долгих поездках для решения бытовых вопросов и сопровождения детей на занятия.<br /><br /><b>Идеально для:</b><br /><br />&middot; Большой семьи с детьми, ценящей безопасность, пространство и природу.<br />&middot; Того, кто ищет современный дом с готовым ремонтом без необходимости что-либо доделывать.<br />&middot; Ценителей приватности и спокойствия за надежным забором.<br /><br />Финансовые и юридические аспекты: Дом новый, все коммуникации современные. Чистая юридическая история.<br /><br /><br /><b>Ваш новый этап жизни начинается здесь. Дом, который создан для счастья, уюта и гармонии.</b> ID объекта в нашей базе: 13588
Объявление № 23895122
Дата подачи:
5 февраля 2026 г. 5:37
Дата обновления:
5 февраля 2026 г. 5:37
Просмотров 3 Хотите продать быстрее?

Продавец
Агентство недвижимости:
Ирина Александровна
email: ir.us@mail.ru
Показать номер телефона
Пожаловаться
Комментарии:
Добавить