Дом по адресу Екатеринбург, КП Луговое ул.Зеленкина, за 6190000 р.

Адрес Екатеринбург, КП Луговое ул.Зеленкина
Цена 6 190 000 р.
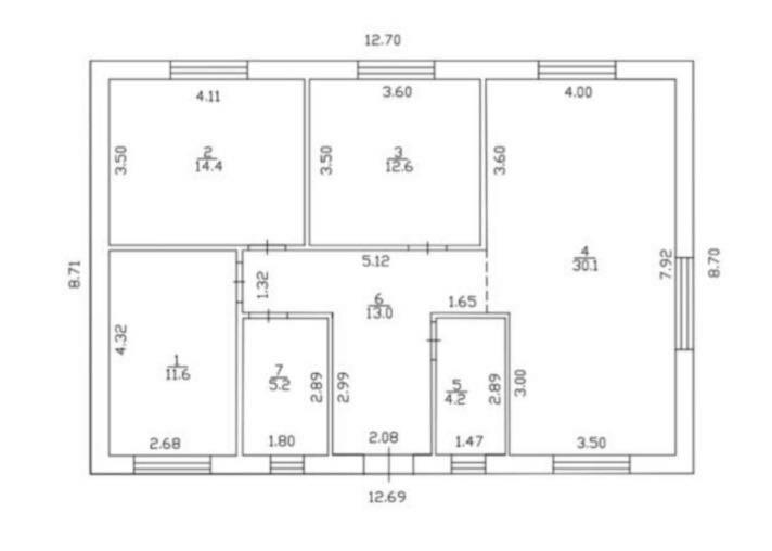
Площадь дома 100 м2, участка 8 м2
Кол-во комнат 3
<em><b>Продается современный, надежный </b><b></b>дом площадью 100 кв.м. расположенный на прямоугольном , ровном участке 8 соток <b>С ГАЗОМ</b> в прекрасном месте в 10 км от города Екатеринбурга КП Луговое .</em><br /><br /><b><i>ЛЮБАЯ ИПОТЕКА !!!<br /></i></b><br />ВНИМАНИЕ: Стоимость дома с ремонтом под ключ 7 200 000<br />При строительстве использованы материалы ВЫСШЕГО качества!<br /><br />Всего в 15 минутах от города Екатеринбурга по Полевскому тракту , расположился уютный дом для семьи из 2-4 человек. Дом можно использовать как для постоянного проживания, так и для дачного отдыха. Место солнечное. Ровный , просторный, прямоугольный участок 8 соток .<br /><br />В доме максимально - продуманная планировка состоящая из 3-х спален , просторная кухня-гостиная с выходом на террасу с солнечной стороны , сан-узел с окном, котельная с окном, тамбур !!! Важно: ремонт обсуждается индивидуально , цветовая гамма и пожелания по материалам !<br /><br /><b>Основные характеристики коттеджа:</b><br /><br /> <ul> <li>Фундамент: свайно-ростверковый, монолитная плита</li> <li>Стены: ТВИН блок 300 мм, утепление 50 мм мин вата и отделка КОРОЕД</li> <li>Кровля: металлочерепица утепленная 200 мм минеральной ватой</li> <li>Отопление: теплый водяной пол по всему периметру дома</li> <li>Окна: пластиковые 70-ый профиль, 2-ух камерные</li> <li>Скважина: автономная глубиной 55 м</li> <li>Канализация: био септик 8 кубов</li> <li>Дверь: надежная с терморазрывом</li> </ul> <br /><b>Преимущества поселка:<br /></b><br /> <ul> <li>Дороги</li> <l i>Электричество</li> <li>Интернет&l t;/li> <li>В 5 минутах инфраструктура </li> <li>Продуктовый магазин </li> <li>Школьный автобус</li> <li>ГАЗ</li> </u l> <i>С нашими клиентами мы работаем БЕСПЛАТНО:<br /></i> <ol> <li>Поможем в оформлении документов</li> <li>Быстро одобрим ипотеку</li> <li>Сопроводим на всех этапах сделки</li> </ol> Записывайтесь на просмотр, мы с огромной радостью покажем данный дом и расскажем про все преимущества! Так -же онлайн показ можем продемонстрировать! Возможно это дом Вашей мечты!<br />С уважением и заботой к своим клиентам Ваш АН-2! ID объекта в нашей базе: 1526
Объявление № 23263043
Дата подачи:
2 октября 2025 г. 23:43
Дата обновления:
2 октября 2025 г. 23:43
Просмотров 11 Хотите продать быстрее?

Продавец
Агентство недвижимости:
Анжелика Владимировна
email: safi_78@inbox.ru
Показать номер телефона
Пожаловаться
Комментарии:
Добавить